Nybyggede leiligheter med havutsikt i Vera Playa, Almería

  • Ref.: NB-72072
  • 78m2
  • 3
  • 2
  •  
388.000€ Informera prisfall

Kjennetegn

Soverom: 3
Baderom: 2
Inne: 78m2
Energi~~POS=TRUNC: B
Avstand til strand: 700 Mts.
Near Schools
Near Commercial Center
Double Bedrooms: 3
Elevator/Lift
Communal Pool
Location: Coastal, Urbanisation
Views: Sea
Useable Build Space: 70 Msq.
Beach: 700 Meters
Parking - Space
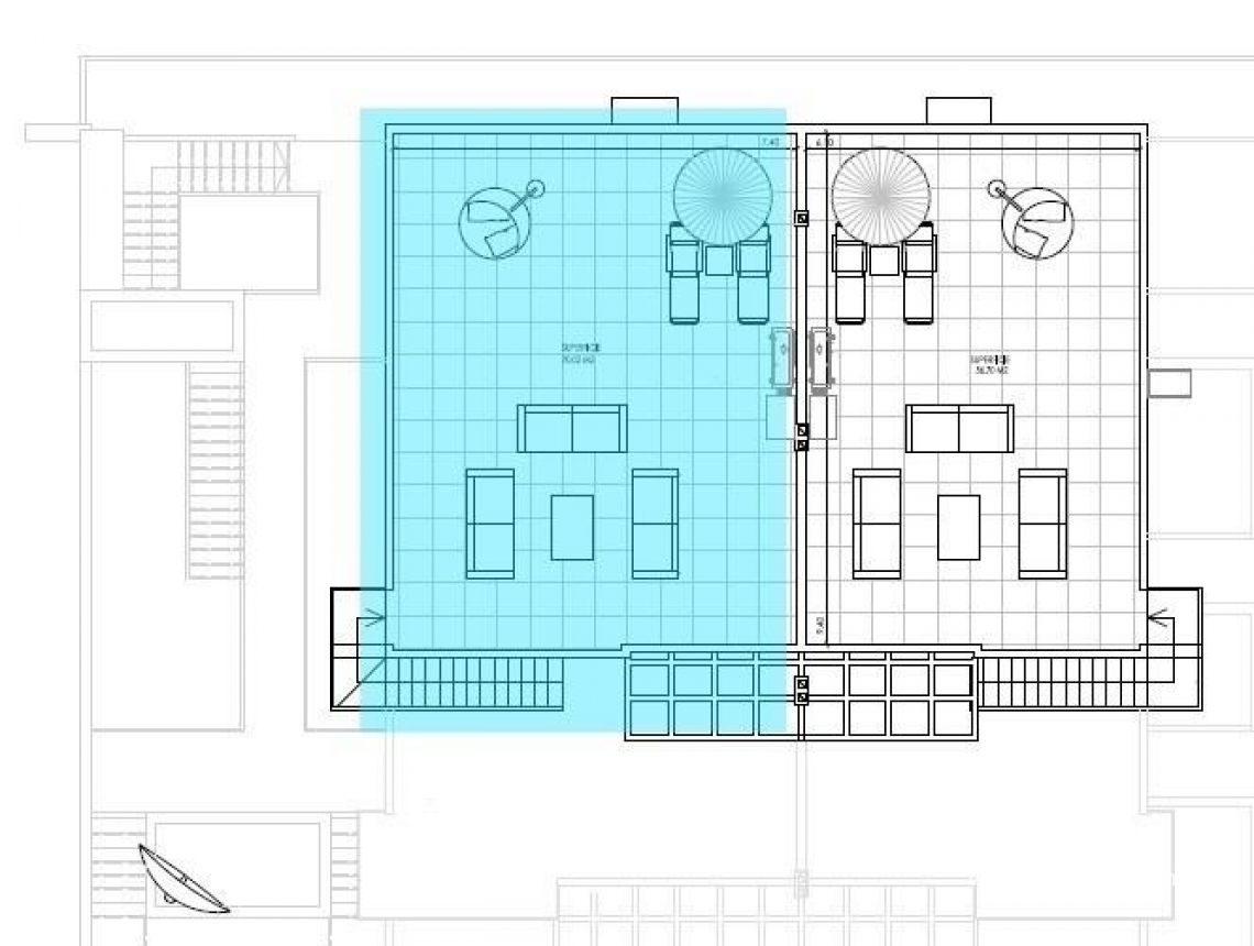
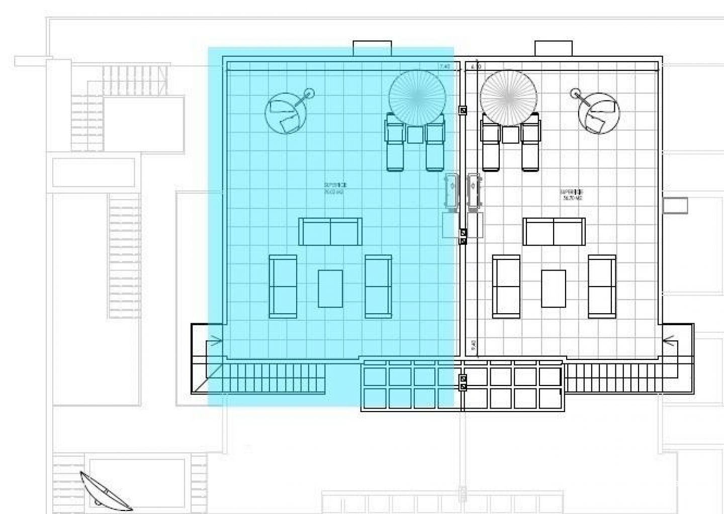
Terrace: 104 Msq.
Storage / Trastero
Gated
Solarium: Yes
Number of Parking Spaces: 1
Energi~~POS=TRUNC
Energi~~POS=TRUNC:
B

Beskrivelse

Nybyggede leiligheter med havutsikt i Vera Playa, Almería

Oppdag dette eksepsjonelle nye boligprosjektet i Vera Playa, som tilbyr 27 moderne leiligheter i første fase. Prosjektet er designet for å kombinere komfort, funksjonalitet og spektakulær utsikt over Middelhavet, og er ideelt for deg som ønsker et hjem på Costa de Almería med stil og bekvemmelighet.

Moderne boliger med havutsikt
Hver leilighet er nøye planlagt for å maksimere naturlig lys og utendørsopphold. Du kan velge mellom 1-, 2- og 3-roms leiligheter, med private hager i første etasje, romslige terrasser i mellomste etasje og penthouse-leiligheter med private solterrasser. Takket være den terrasserte utformingen har alle boliger udekket terrasse med fantastisk utsikt over havet.

Kvalitetsfinish og fullt utstyrte boliger
Alle eiendommer er fullt møblerte og utstyrte, klare til innflytting. Funksjoner inkluderer:
Møblert kjøkken med hvitevarer inkludert
Komplette bad med moderne innredning
Klimaanlegg
Privat parkeringsplass og bod

Eksklusive fellesfasiliteter
Høydepunktet i dette boligkomplekset er det felles svømmebassenget, omgitt av anlagte hager, som skaper det perfekte stedet for å slappe av, sole seg og nyte familietiden.

Førsteklasses beliggenhet i Vera Playa
Vera Playa er kjent for sine lange sandstrender, avslappede livsstil og utmerkede fasiliteter. Boligkomplekset ligger i et rolig, men likevel godt tilknyttet område med enkel tilgang til tjenester og transportforbindelser. Viktige avstander inkluderer:
Strand: 700 m
Desert Springs Golf Resort: 8 km
Vera sentrum: 5 km
Garrucha marina og restauranter: 6 km
Mojácar Commercial Park: 10 km
Almería lufthavn: 85 km (ca. 1 time)
Høyhastighets AVE-togstasjon (under bygging): 3 km

Et ideelt hjem eller en investeringsmulighet
Enten du er på utkikk etter en permanent bolig, et feriested eller en sikker investering, tilbyr disse nybygde leilighetene i Vera Playa utmerket verdi i et av Almerías mest attraktive kystområder.

Gjør Vera Playa til ditt nye hjem og opplev den perfekte kombinasjonen av moderne liv, havutsikt og middelhavsstil. Kontakt oss i dag for å avtale et besøk og sikre deg din drømmebolig på Costa de Almería.

Plassering

Økonomi

Denne informasjonen gitt her er underlagt feil og inngår ikke i noen kontrakt. Tilbudet kan endres eller trekkes tilbake uten varsel. Prisene inkluderer ikke andre kostnader

Beregn boliglån

Valutaveksling

  • Pounds: 338.212 GBP
  • Russiske rubelen: 338.212 RUB
  • Sveitsiske franc: 358.163 CHF
  • Kinesiske yuan: 3.122.740 CNY
  • Dollar: 457.724 USD
  • Svenske kroner: 4.191.564 SEK
  • Den norske kronen: 4.274.596 NOK

Mer informasjon

Responsable del tratamiento: Naranja Spain, Finalidad del tratamiento: Gestión y control de los servicios ofrecidos a través de la página Web de Servicios inmobiliarios, Envío de información a traves de newsletter y otros, Legitimación: Por consentimiento, Destinatarios: No se cederan los datos, salvo para elaborar contabilidad, Derechos de las personas interesadas: Acceder, rectificar y suprimir los datos, solicitar la portabilidad de los mismos, oponerse altratamiento y solicitar la limitación de éste, Procedencia de los datos: El Propio interesado, Información Adicional: Puede consultarse la información adicional y detallada sobre protección de datos Aquí.

© 2026 Naranja Spain · Juridisk merknad

Privatliv · Cookies · Web kart · Design: Mediaelx