
Nybyggede bungalower i Pilar de la Horadada
Moderne boliger nær stranden
Oppdag dette eksklusive nybyggede boligkomplekset i Pilar de la Horadada, som tilbyr bungalower og tomannsboliger mindre enn 2 km fra stranden. Disse boligene er designet for å tilby komfort og stil, og er en utmerket mulighet til å nyte livet på Costa Blanca.
Romslige og stilfulle boliger
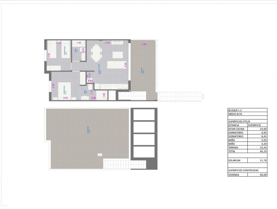
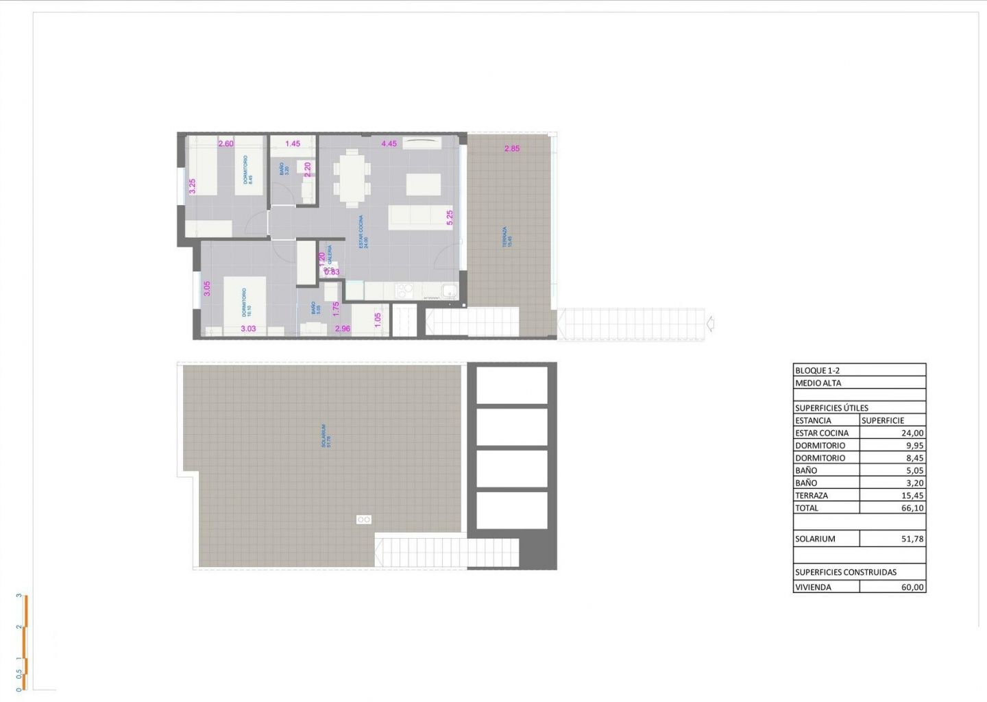
Dette prosjektet tilbyr boliger med 2 eller 3 soverom, 2 bad og privat parkering. Velg mellom:
Bungalows i første etasje med privat hage.
Bungalows i andre etasje med privat solterrasse.
Tomannsboliger med kjeller og store tomter.
Hver bolig er bygget med materialer av høy kvalitet og moderne finish, inkludert:
Installasjon av klimaanlegg.
Utvendig snekring i aluminium, doble vinduer og persienner i injisert aluminium.
Sikkerhetsdør for ekstra trygghet.
Aerotermisk system for effektiv varmtvannsproduksjon.
Innebygde skap i soverommene.
Fullt utstyrte bad med møbler og dusjvegger.
Eksklusive egenskaper ved samfunnet
Dette private boligkomplekset har et vakkert felles svømmebasseng og anlagte hager, som skaper et ideelt sted for avslapning. Beliggende i utkanten av sentrum, kan beboerne gå til supermarkeder, restauranter, barer, skoler og andre viktige tjenester.
Privilegert beliggenhet i Pilar de la Horadada
Pilar de la Horadada er en sjarmerende spansk by i den sørligste delen av Costa Blanca. Den har en livlig hovedgate med mange butikker, supermarkeder, restauranter og pittoreske torg.
De imponerende strendene Torre de la Horadada og Mil Palmeras ligger bare 5 minutter unna, med fin, gylden sand og en pittoresk strandpromenade. Byen tilbyr også sykkelstier og velutviklede turstier, i tillegg til et stort utvalg av sportsaktiviteter.
Praktisk tilgang til viktige destinasjoner
Lo Romero golfbane – 5 km (10 minutter med bil).
Corvera flyplass (Murcia) – 40 km (40 minutter med bil).
Alicante flyplass – 55 km (55 minutter med bil).
Kjøpesentre (La Zenia Boulevard) – 15 km (15 minutter med bil).
Torre de la Horadada marina - 3 km (5 minutter med bil).
Sikre deg drømmehuset i dag
Ikke gå glipp av denne fantastiske muligheten til å eie en nybolig i en privilegert beliggenhet. Kontakt oss i dag for mer informasjon og for å avtale en visning.
Denne informasjonen gitt her er underlagt feil og inngår ikke i noen kontrakt. Tilbudet kan endres eller trekkes tilbake uten varsel. Prisene inkluderer ikke andre kostnader