
Nybyggede villaer i Aspe.
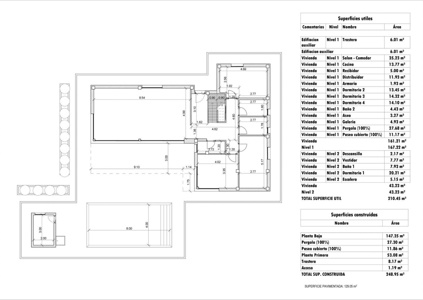
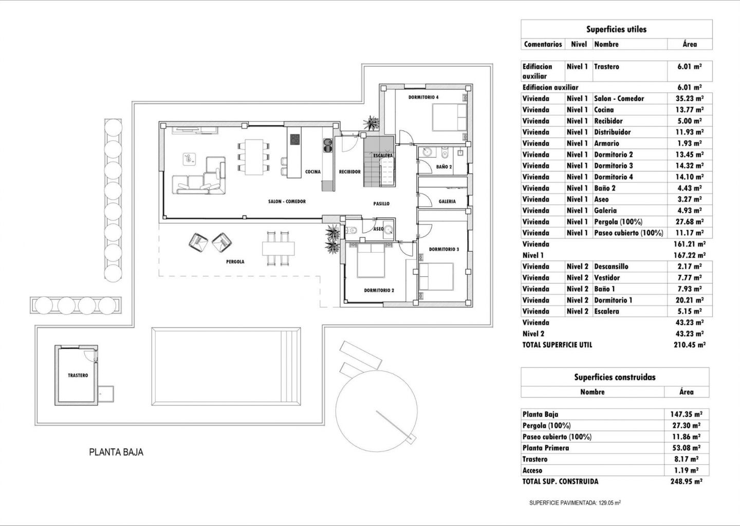
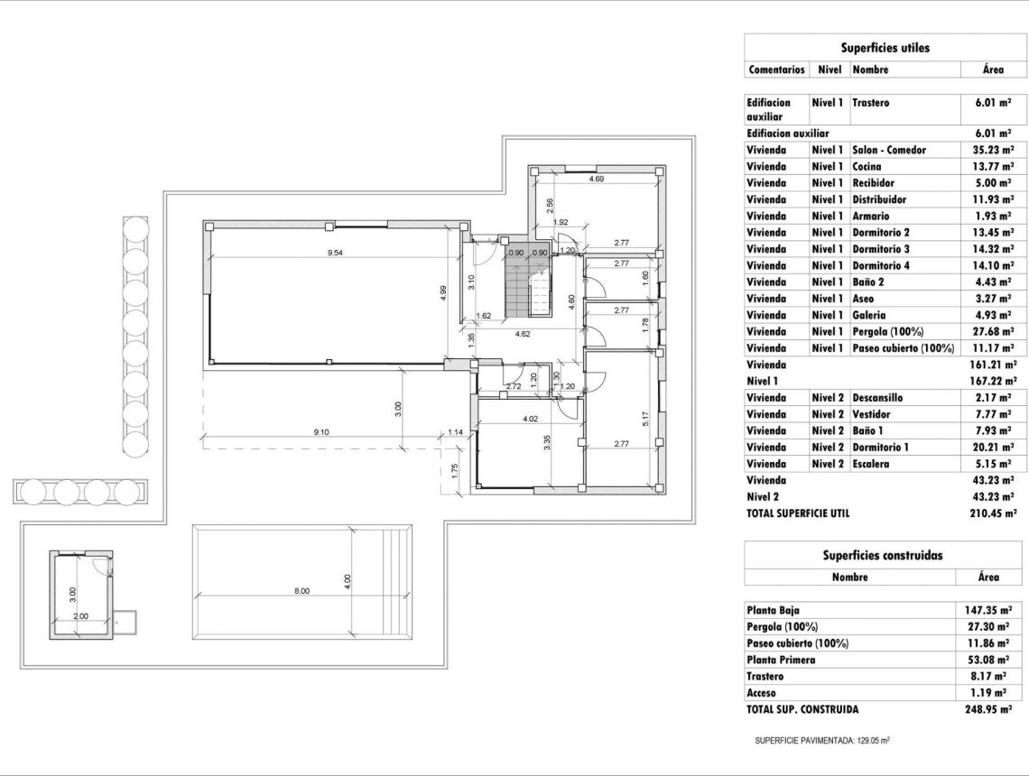
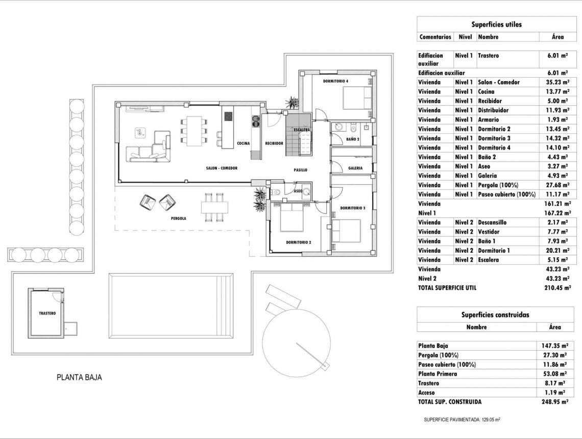
Nybyggede villaer med flere modeller å velge mellom, med 2, 3 eller 4 soverom, på 1 eller 2 etasjer og bygget med plate eller struktur: avhengig av modell og valgt tomt, vil den nøyaktige prisen bli beregnet.
Alle villaene bygges på rustikke tomter på over 10 000 m2, hvorav ca. 2500 m2 vil bli inngjerdet.
Villaene har åpen kjøkkenløsning med stue, innebygde skap, privat svømmebasseng, veranda, bod og utendørs parkeringsplass.
Det er flere tomter å velge mellom. For prisberegningen er det lagt til grunn en tomt til en pris av 77 500 euro (hvis du velger en annen tomt, betales differansen i henhold til prisen på denne).
Prosjektet er selvbygg, og levering skjer ca. 12 måneder etter at byggetillatelsen er gitt.
Hvis du er ute etter et rolig miljø, nær typiske spanske landsbyer langt fra turistmassene, omgitt av fjell, med en svært stor tomt og ca. 30 minutter fra havet, er dette huset for deg.
Aspe er en typisk spansk landsby med alle daglige tjenester, omgitt av fjell og med flere naturområder i nærheten hvor du kan gå på tur eller sykle på terrengsykkel.
Ligger 25 km fra stranden, 9 km fra Elche og ca. 20 km fra Alicante flyplass.
Denne informasjonen gitt her er underlagt feil og inngår ikke i noen kontrakt. Tilbudet kan endres eller trekkes tilbake uten varsel. Prisene inkluderer ikke andre kostnader