
Nybygde villaer på romslige tomter på over 500 m² i Lorca
Nye villaer i middelhavsstil i et sikkert og rolig boligområde
Oppdag et eksklusivt prosjekt med uavhengige villaer på tomter på over 500 m², med strategisk beliggenhet sørøst i Spania. Disse boligene tilbyr den perfekte kombinasjonen av landlig ro, nærhet til kysten og utmerkede veiforbindelser til større byer og flyplasser.
Dette boligområdet ligger i privilegerte omgivelser på Costa Cálida, med solskinn året rundt, noe som gjør det til et ideelt sted for å nyte middelhavsstilen.
Romslige, lyse boliger med private hager
Disse villaene er designet for maksimal komfort og avslapning, og har åpne oppholdsrom med store vinduer som sømløst forbinder inne- og uterom. Den sjenerøse private hagen tilbyr de perfekte omgivelsene for utendørsaktiviteter, med mulighet for å legge til et svømmebasseng og tilpasse landskapsarkitekturen.
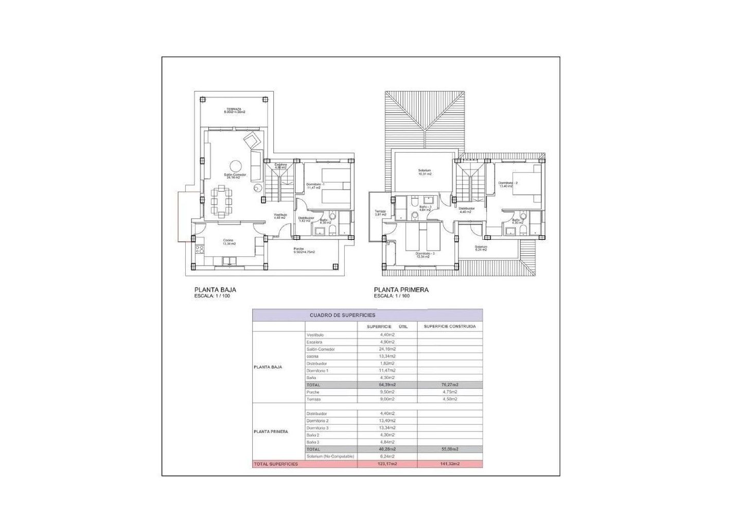
Velg mellom tre villamodeller, tilgjengelige i en eller to etasjer, med 3 eller 4 soverom og 2 eller 3 bad. Alle boligene har et privat solarium, slik at beboerne kan dra full nytte av de vakre omgivelsene.
Et sikkert og velutstyrt boligområde
Denne inngjerdede urbanisasjonen tilbyr en 24-timers sikkerhetstjeneste med kontrollert adgang, noe som sikrer trygghet for alle beboerne. Området er designet med tanke på et grønt liv, og omfatter blant annet
To store, anlagte parker for avslapning og familieaktiviteter.
Egne sports- og lekeområder for å fremme en aktiv livsstil.
Gater med trær og en 3,5 km lang sykkelsti som går langs omkretsen av urbanisasjonen.
En kommersiell sone ved inngangen, med restaurant, supermarked, bensinstasjon og andre viktige tjenester.
Høy kvalitet for maksimal komfort
Hver villa er bygget med materialer av topp kvalitet og moderne installasjoner, inkludert:
Forhåndsinstallasjon for luftkondisjonering med kanaler
Forhåndsinstallasjon for naturgass
Sikkerhetsinngangsdør
Climalit-vinduer med doble glass
Fullt inngjerdet område med 24-timers overvåking
Førsteklasses beliggenhet - nær kysten og byens fasiliteter
Disse villaene ligger i et nyutviklet område i Lorca kommune, og tilbyr et naturlig og fredelig miljø samtidig som det er lett tilgang til viktige steder:
Lorca sentrum - 10 km
Águilas strender - 20 km
Murcia-Corvera lufthavn - 70 km
Alicante lufthavn - 130 km
Kjøpesentre og restauranter - 10 km
Finn ditt ideelle hjem på Costa Cálida
Med 50 boliger som allerede er ferdigstilt og totalt 320 planlagte, er dette din mulighet til å sikre deg en ny villa i middelhavsstil i et blomstrende nytt samfunn. Enten det er som permanent bolig, fritidsbolig eller investering, tilbyr disse eiendommene utmerket verdi med en førsteklasses beliggenhet.
Kontakt oss i dag for å få mer informasjon og avtale et besøk!
Denne informasjonen gitt her er underlagt feil og inngår ikke i noen kontrakt. Tilbudet kan endres eller trekkes tilbake uten varsel. Prisene inkluderer ikke andre kostnader