Nybyggede villaer i Polop, Alicante

  • Ref.: NB-86226
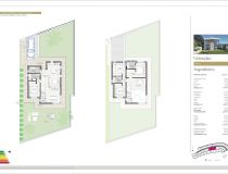
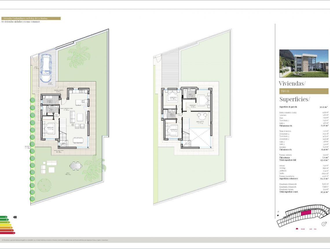
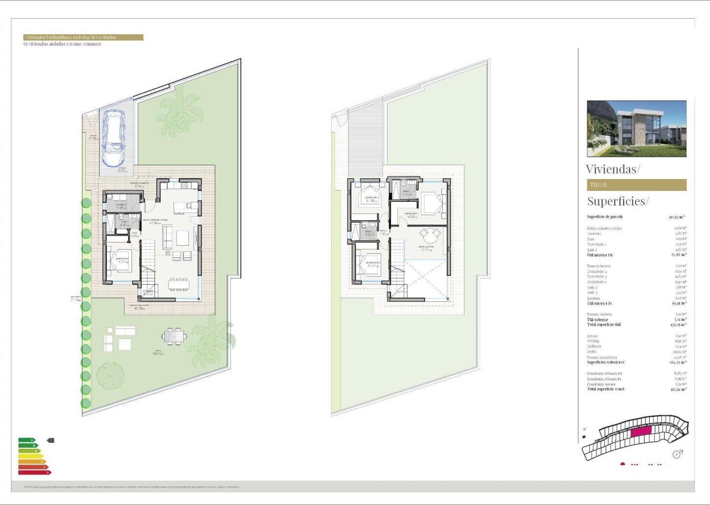
  • 163m2
  • 393m2
  • 4
  • 3
626.500€ Informera prisfall

Kjennetegn

Soverom: 4
Baderom: 3
Inne: 163m2
Plott: 393m2
Energi~~POS=TRUNC: B
Avstand til strand: 8500 Mts.
Near Commercial Center
Air Conditioning: Yes
Near Trees
Location: Coastal, Rural, Mountain, Urbanisation
Double Bedrooms: 4
Terrace: 48 Msq.
Beach: 8500 Meters
Useable Build Space: 133 Msq.
Parking - Space
Gated
Number of Parking Spaces: 1
Near Schools
Energi~~POS=TRUNC
Energi~~POS=TRUNC:
B

Beskrivelse

Nybyggede villaer i Polop, Alicante

Moderne livsstil omgitt av natur
Oppdag dette eksklusive boligprosjektet med nybygde villaer i Polop, en sjarmerende landsby i innlandet i Alicante-provinsen. Bare 10 km fra Benidorms livlige strender og natteliv og i nærheten av den pittoreske byen Altea, tilbyr disse boligene en uslåelig kombinasjon av moderne komfort og naturlig skjønnhet.

Et boligprosjekt skreddersydd etter dine behov
Prosjektet består av 65 uavhengige villaer med ulike planløsninger som passer dine behov og budsjett. Du kan velge mellom boliger med 3 eller 4 soverom, og du kan velge mellom en eller to etasjer. Mange av boligene er utformet på ett plan, noe som gir bedre tilgjengelighet og en komfortabel boopplevelse uten behov for trapper.

Alle boligene er gjennomtenkt utformet med romslige terrasser, private hager og innvendige og utvendige rom der du kan nyte middelhavsklimaet. Private bassenger er også tilgjengelig som tilvalg for å gi ditt nye hjem en ekstra touch av luksus.

Førsteklasses beliggenhet med enkel tilgang til viktige destinasjoner
Prosjektet ligger i fredelige naturomgivelser, og er ideelt for deg som søker ro uten å gå på bekostning av bekvemmelighet. Området rundt tilbyr tilgang til viktige severdigheter:

Benidorms strender: 10 km (15 minutters kjøretur)
Playa del Albir: 12 km (20 minutter), kjent for sitt uberørte vann og sin naturskjønne strandpromenade
Alicante lufthavn: 60 km (45 minutter)
Villaitana golfbane: 12 km (15 minutter)
La Marina kjøpesenter: 10 km (15 minutter)

Førsteklasses funksjoner for moderne komfort
Alle villaene er utstyrt med høykvalitetsfinish og toppmoderne systemer, noe som sikrer maksimal komfort, sikkerhet og bærekraft:
Doble PVC-vinduer med varme- og solisolasjon
Forsterkede inngangsdører for økt sikkerhet
Fullt utstyrt kjøkken med induksjonstopp, stekeovn, avtrekksvifte og vask i rustfritt stål
Moderne bad med stilfulle porselensvasker og armaturer
Forhåndsinstallert kanalisert klimaanlegg med varmepumpe
Varmt vann leveres via aerotermiske systemer for energieffektivitet
Inngjerdet område med overvåkningskameraer

Polop: Den perfekte blandingen av historie og natur
Polop de la Marina er en historisk by omgitt av et fantastisk landskap. Den sjarmerende gamlebyen, Gabriel Miró-museet og de mange turstiene gjør byen til et ettertraktet reisemål for natur- og historieinteresserte.

Opplev livet ved kysten og på landsbygda
Omfavn en ny livsstil i disse nøye designede boligene, der komfort møter naturen. Nyt panoramautsikten gjennom store vinduer som rammer inn det omkringliggende landskapet og skaper den perfekte balansen mellom inne- og uteliv.

Ikke gå glipp av muligheten til å eie drømmehuset ditt i Polop! Kontakt oss i dag for mer informasjon og for å avtale et besøk.

Plassering

Økonomi

Denne informasjonen gitt her er underlagt feil og inngår ikke i noen kontrakt. Tilbudet kan endres eller trekkes tilbake uten varsel. Prisene inkluderer ikke andre kostnader

Beregn boliglån

Valutaveksling

  • Pounds: 541.359 GBP
  • Russiske rubelen: 541.359 RUB
  • Sveitsiske franc: 573.623 CHF
  • Kinesiske yuan: 5.011.311 CNY
  • Dollar: 736.827 USD
  • Svenske kroner: 6.792.513 SEK
  • Den norske kronen: 6.779.670 NOK

Mer informasjon

Responsable del tratamiento: Naranja Spain, Finalidad del tratamiento: Gestión y control de los servicios ofrecidos a través de la página Web de Servicios inmobiliarios, Envío de información a traves de newsletter y otros, Legitimación: Por consentimiento, Destinatarios: No se cederan los datos, salvo para elaborar contabilidad, Derechos de las personas interesadas: Acceder, rectificar y suprimir los datos, solicitar la portabilidad de los mismos, oponerse altratamiento y solicitar la limitación de éste, Procedencia de los datos: El Propio interesado, Información Adicional: Puede consultarse la información adicional y detallada sobre protección de datos Aquí.

© 2026 Naranja Spain · Juridisk merknad

Privatliv · Cookies · Web kart · Design: Mediaelx