
NYBYGGEDE BUNGALOWER I HONDON DE LAS NIEVES
Nybygde 4 bungalower i Hondón de las Nieves (Alicante).
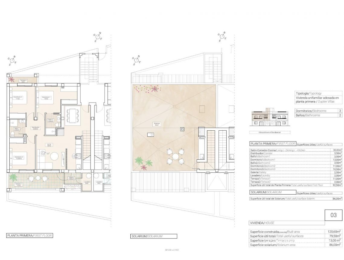
Alle bungalowene har 3 soverom med garderober, 2 bad, stor stue, kjøkken og terrasse.
Boligene ligger i første etasje med terrasse/hage foran og bak, og i øverste etasje med terrasse og privat solarium.
Boligene i første etasje har solcellepaneler på taket for å spare energi.
Kjøkkenet er fullt møblert og utstyrt med benkeplater i granitt eller syntetisk agglomerat (silestone eller lignende).
Badene er utstyrt med sanitærutstyr og kraner av høy kvalitet med innebygd sisterne.
Boligene er forhåndsinstallert med klimaanlegg med varmepumpe, ventilasjonsanlegg med varmegjenvinning, aerotermisk system for varmtvann, moderne varme- og lydisolasjon, utvendig snekkerarbeid i aluminium med kuldebrobryter og skodder.
Hondón de las Nieves er en by i Valencia-regionen i Spania.
Den ligger sørvest i Alicante-provinsen, i regionen Vinalopó Medio.
Strendene og Alicante lufthavn ligger bare 30 minutters kjøring unna.
Denne informasjonen gitt her er underlagt feil og inngår ikke i noen kontrakt. Tilbudet kan endres eller trekkes tilbake uten varsel. Prisene inkluderer ikke andre kostnader