
NYBYGGDE VILLAER I FORTUNA
Nybygg villaer i Fortuna, Murcia.
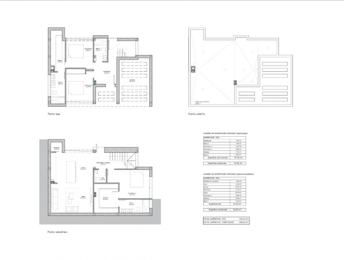
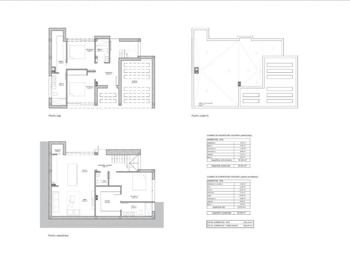
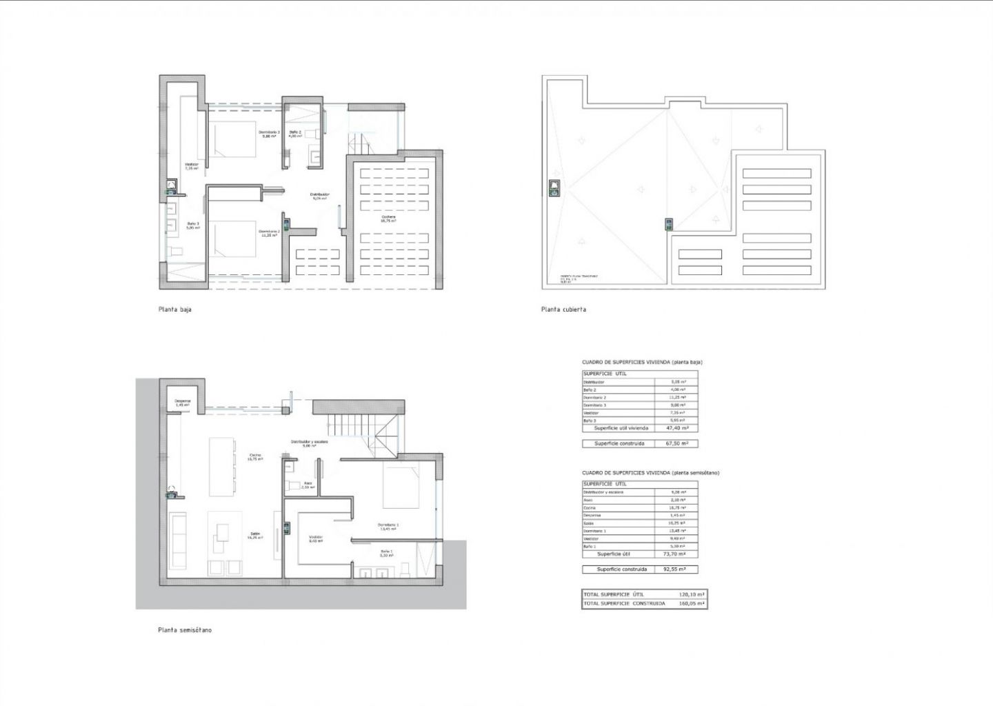
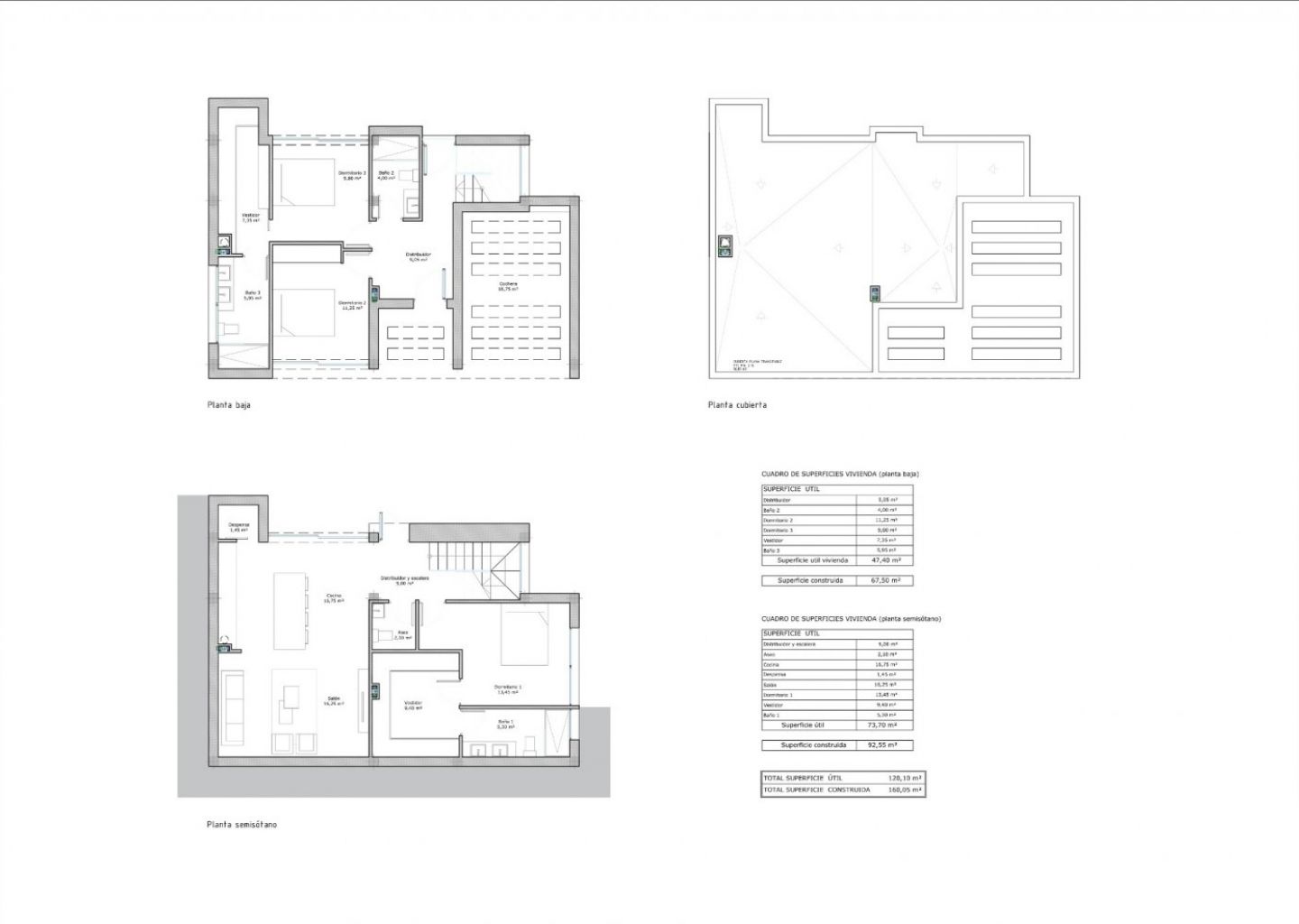
Uavhengig villa over 2 etasjer og har 3 soverom, 2 bad, 2 garderober, åpen kjøkkenløsning med stue, garasje, privat hage med svømmebasseng.
Byen Fortuna er mindre enn 3 km unna for daglig shopping, og byen Murcia er 25 km unna, hvor det er et bredt utvalg av gastronomiske og fritidsfasiliteter.
Klimaet på Costa Cálida, ofte ansett som det beste i Europa, muliggjør en veldig sosial og sunn livsstil, utendørs, preget av fantastiske sports- og fritidsfasiliteter, med spennende og kosmopolitiske turistbyer som skiller seg ut for å tilby tjenester i toppklasse. , noen av dem eksklusive, ansett som ekte luksus.
Costa Cálida i Murcia har mer enn 300 soldager i året.
I tillegg til golfbanene og marinaene som du kan nyte langs hele kysten, tilbyr området også muligheten for å stå på ski i den nærliggende Sierra Nevada, et paradis for vintersportelskere, med vakkert naturlandskap.
Muligheten til å nyte alle slags kultur- og fritidstilbud fra nærliggende hovedsteder som Murcia og Cartagena.
Et paradis med gode forbindelser til hele Europa. Alicante-Elche og Murcias Corvera flyplasser ligger en time unna.
Denne informasjonen gitt her er underlagt feil og inngår ikke i noen kontrakt. Tilbudet kan endres eller trekkes tilbake uten varsel. Prisene inkluderer ikke andre kostnader