
NYBYGG VILLAER I LOS ALCAZARES
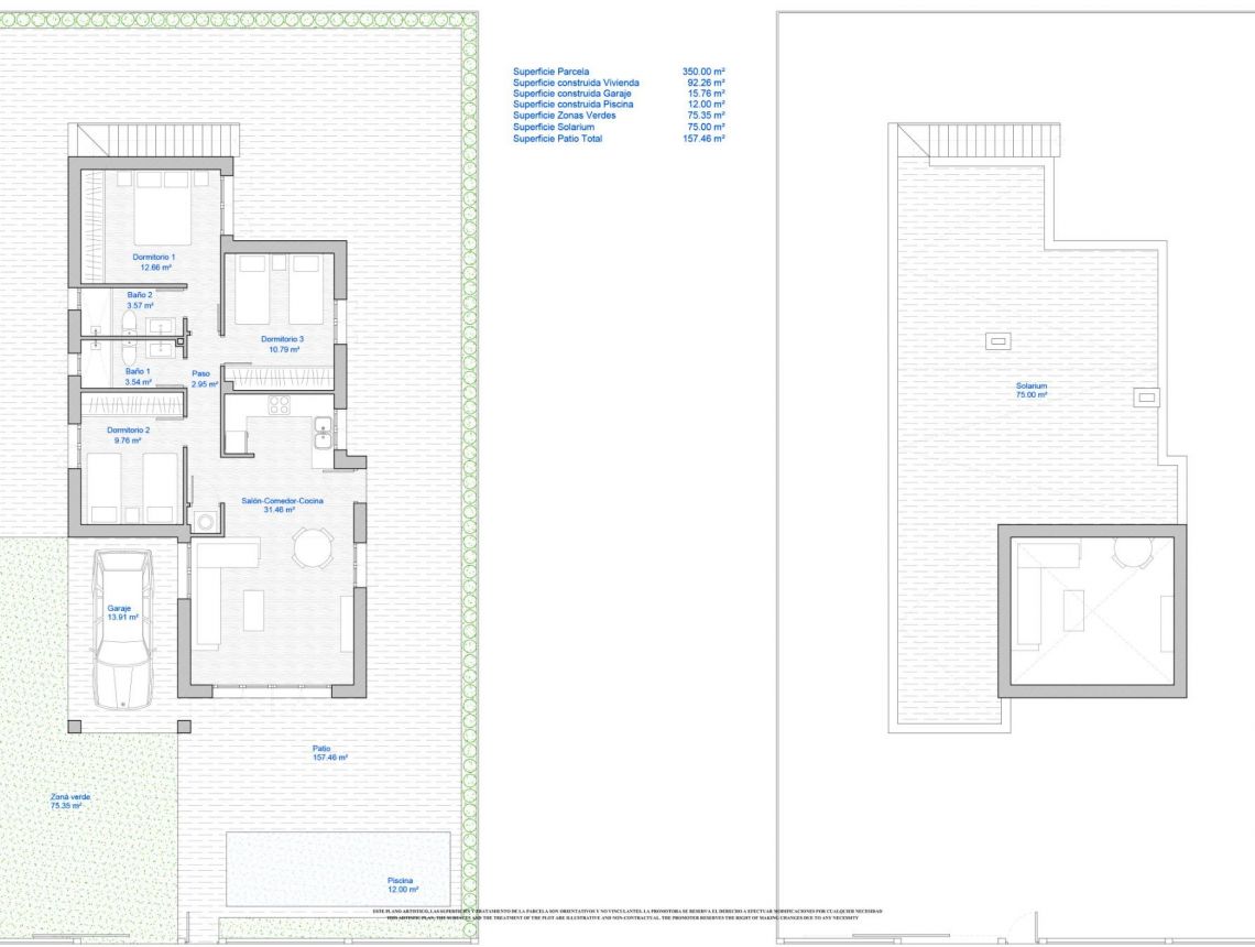
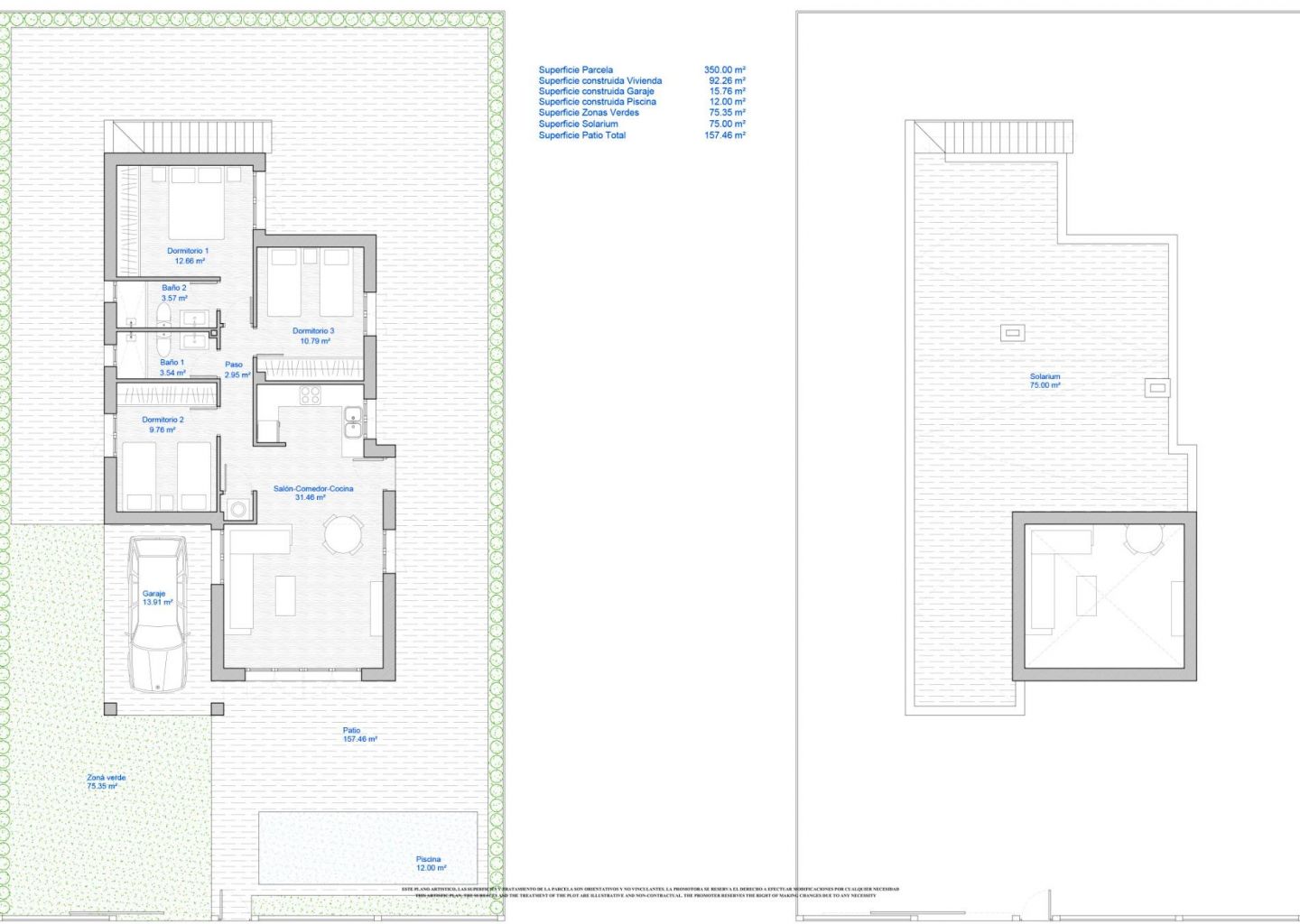
Nybygget frittstående villa bygget på den sjenerøse tomten på 350m2 i Los Alcazares.
Villa med 3 soverom og 2 bad, åpen kjøkkenløsning med stue, garderober, solarium, privat hage med parkeringsplass og plass til svømmebasseng.
Et alternativ for et privat basseng mot en ekstra kostnad.
Romslig stue har store skyvedører til terrasse.
Store terrasser foran og bak sikrer at eierne kan sole seg hele dagen.
Disse villaene har moderne utstyrt kjøkken med et utvalg av farger for kjøkkenenheter og veggfliser på både kjøkken og bad og også gulv og terrasser.
Bolig med villaer som ligger 1 km fra stranden og byen Los Alcázares, hvor du kan utøve ulike vannsporter, omgitt av flere golfbaner.
Byen Cartagena mindre enn 15 minutter med bil og 30 minutter fra Murcia Corvera flyplass.
Denne informasjonen gitt her er underlagt feil og inngår ikke i noen kontrakt. Tilbudet kan endres eller trekkes tilbake uten varsel. Prisene inkluderer ikke andre kostnader