
LUKSUS NYBYGGEVILLAER I FINESTRAT MED HAVUTSIKT
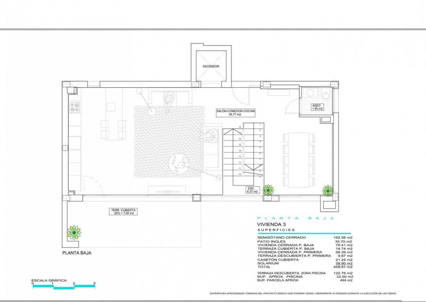
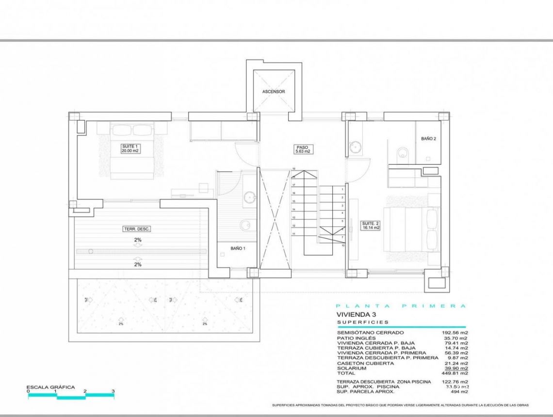
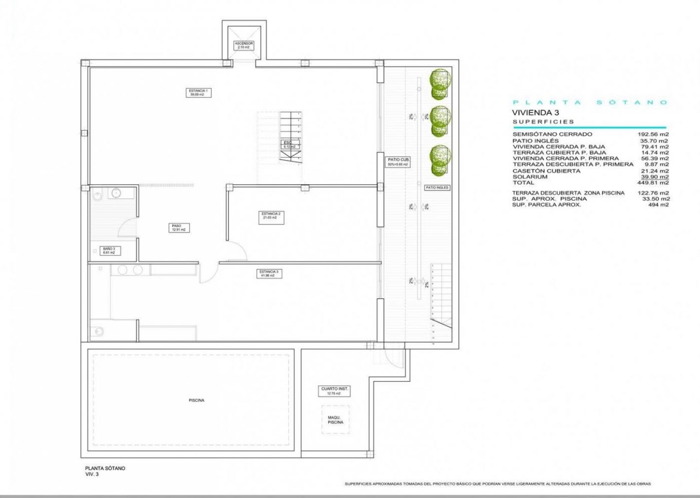
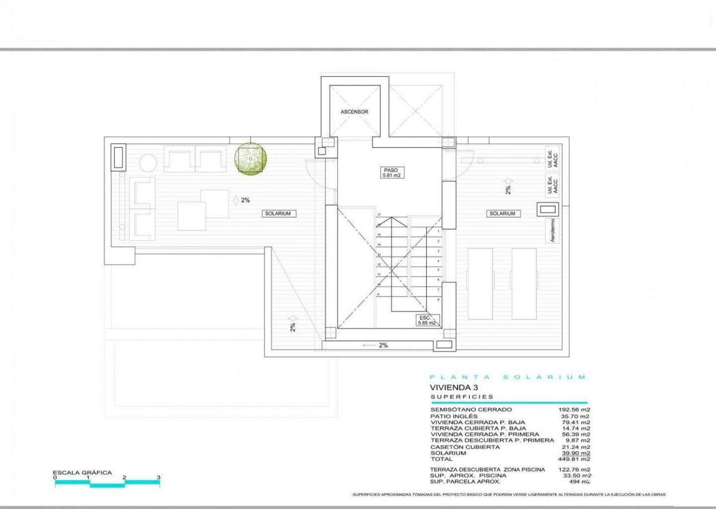
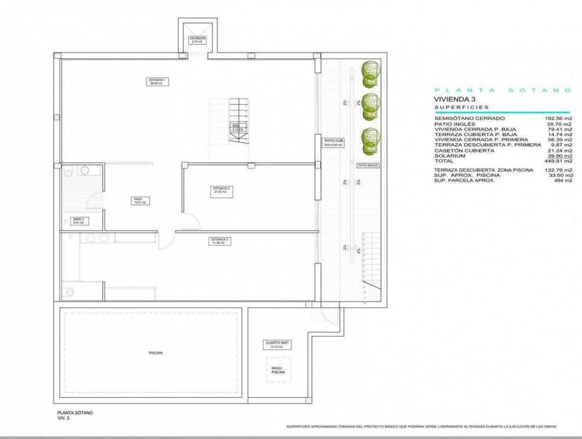
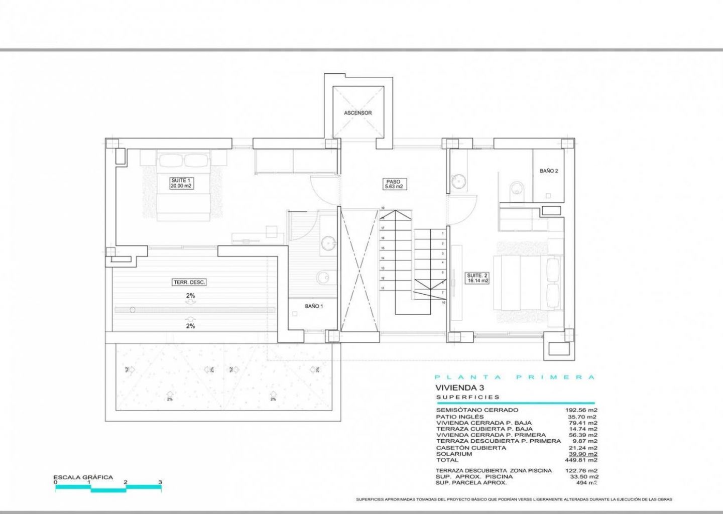
Luksusvillaer beliggende i New Build boligkompleks i Finestrat. Disse villaene består av to etasjer, et solarium, kjeller og en indre hage med privat basseng.
Hver villa har sin egen heis.
Solariet tilbyr en vid og uforglemmelig utsikt over Benidorm og havet.
Disse villaene er unike for design og fasiliteter: en stor stue, store soverom med eget bad i første etasje, et solarium for å slappe av og nyte solnedgangen, et moderne evighetsbasseng og en stor terrasse for ferier og avslapning.
Bolig som ligger 5 minutter med bil fra alle tjenestene Benidorm kan tilby og i et miljø med en gjennomsnittlig årlig temperatur på 20ºC og 300 soldager i året, 44 km fra Alicante flyplass, 3 km fra sjøen og 200 meter til golf.
Denne informasjonen gitt her er underlagt feil og inngår ikke i noen kontrakt. Tilbudet kan endres eller trekkes tilbake uten varsel. Prisene inkluderer ikke andre kostnader