
NYBYGGEDE VILLAER I SAN MIGUEL DE SALINAS
Nybyggede eneboliger i San Miguel de Salinas.
Moderne designvillaer skapt for å nyte den spanske solen.
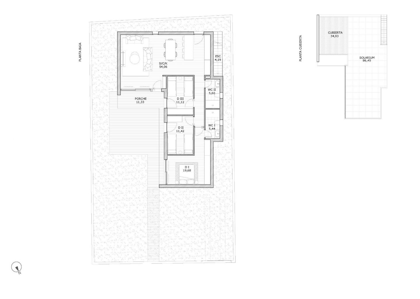
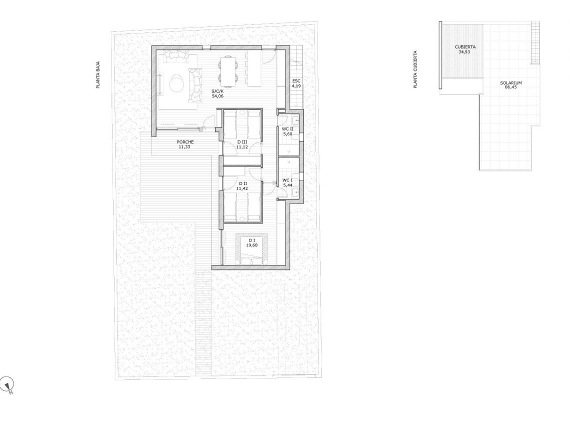
Villaene er bygget over 1 etasje, har 3 soverom, 2 bad, åpen kjøkkenløsning med romslig stue, garderober, terrasse og privat solarium.
Hver villa har en egen tomt med parkeringsplass.
Mulighet for et privat basseng mot en ekstra kostnad.
San Miguel de Salinas ligger nær golfbanene Las Colinas og Campoamor, og tilbyr eksepsjonell utsikt over lagunene Torrevieja og La Mata.
San Miguel de Salinas er en kommune i Valencia-regionen i Spania. Den ligger sør i Alicante-provinsen, i regionen Vega Baja del Segura i nærheten av Murcia-regionen.
Alicante flyplass ligger 35 minutters kjøring unna, og Murcias Corvera flyplass ligger ca. 1 times kjøring unna.
Denne informasjonen gitt her er underlagt feil og inngår ikke i noen kontrakt. Tilbudet kan endres eller trekkes tilbake uten varsel. Prisene inkluderer ikke andre kostnader