Išskirtinės naujos statybos vilos 300 m nuo paplūdimio Torre de la Horadada

  • Ref.: NB-14694
  • 130m2
  • 207m2
  • 3
  • 3

Charakteristika

Kambarių skaičius : 3
Vonios kambariai: 3
Pastatyta: 130m2
Sklypas: 207m2
Energijos reitingas: B
Statybos metai: 2025
Atstumas iki paplūdimio: 300
Near Commercial Center
Location: Coastal
Double Bedrooms: 3
Near Golf / Golf Resort Property
Key Ready
Useable Build Space: 115 Msq.
Number of Parking Spaces: 2
Beach: 300 Meters
Terrace: 88 Msq.
Parking - Space
Gated
Solarium: Yes
Near Schools
Energijos reitingas
Energijos reitingas:
B

Aprašymas

Išskirtinės naujos statybos vilos 300 m nuo paplūdimio Torre de la Horadada

Prabangus gyvenimas pakrantėje puikioje vietoje
Atraskite šį išskirtinį naujos statybos vilų projektą Torre de la Horadada, viename iš labiausiai pageidaujamų pakrantės miestelių pietų Alicante. Šios vilos, esančios vos 300 m nuo Viduržemio jūros ir pėsčiomis pasiekiamoje vietoje nuo parduotuvių, restoranų ir kasdieninių paslaugų, siūlo išskirtinę galimybę mėgautis Costa Blanca gyvenimo būdu. Torre de la Horadada žinoma dėl savo atsipalaidavusios atmosferos, gražios promenados ir smulkių smėlio paplūdimių, todėl ji idealiai tinka tiek nuolatiniam gyvenimui, tiek atostogoms.

Paskutinė raktų perdavimo vila, visiškai įrengta
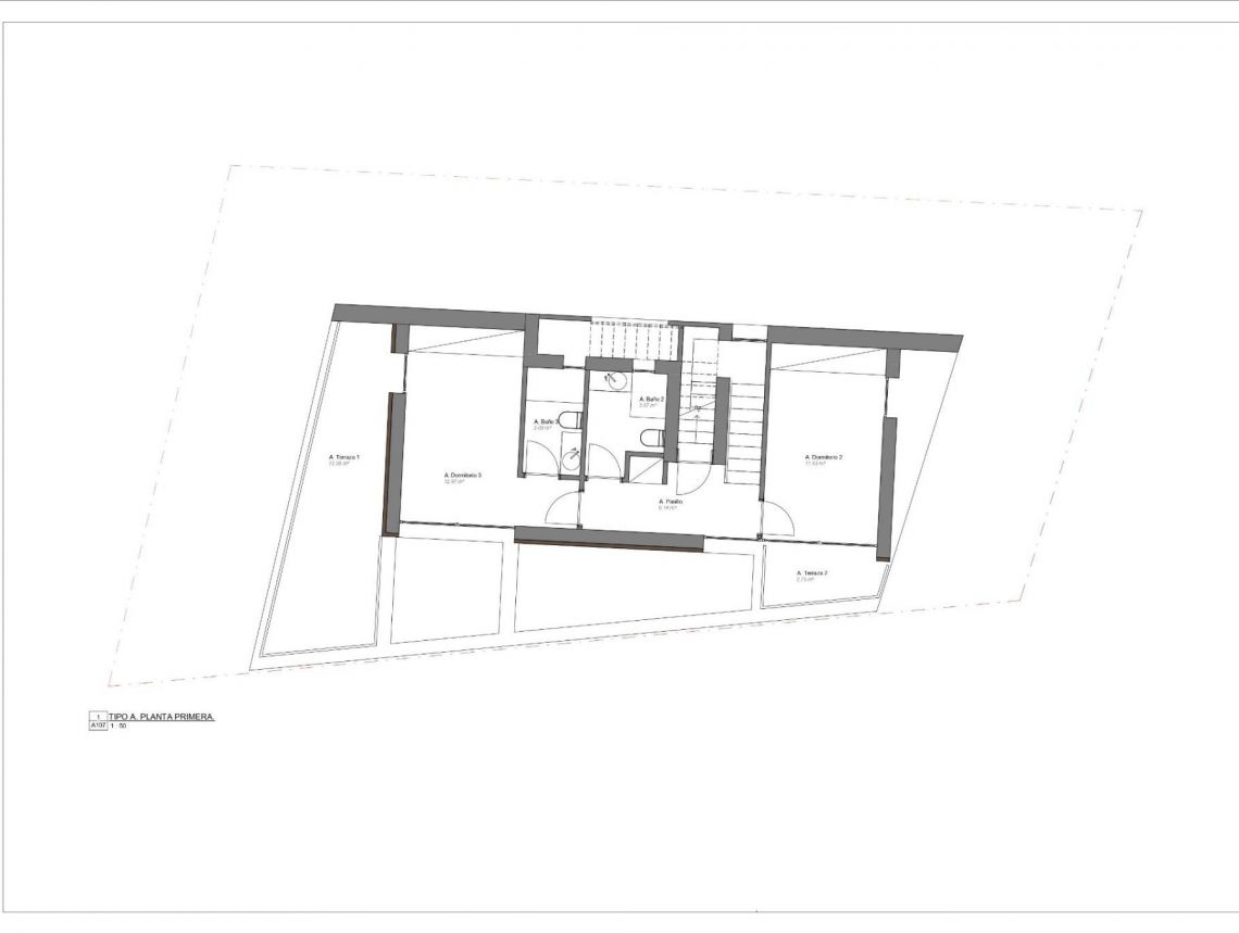
Šis boutique projektas susideda tik iš keturių nepriklausomų vilų, paskutinė iš jų yra visiškai įrengta ir parengta raktų perdavimui. Vila yra įrengta baldais, buitine technika ir kanaliniais oro kondicionieriais, todėl galite iškart įsikurti ir pradėti mėgautis savo naujais namais prie jūros. Vila stovi ant privačioje sklypo dalyje, kurios plotas yra apie 207 m2, o jos statybos plotas yra apie 130 m2, kuris yra paskirstytas per pirmąjį aukštą, antrąjį aukštą ir privačią stogo terasą.

Modernus dizainas su privačiu baseinu ir saulės terasa
Vila yra šiuolaikiško dizaino su atviromis ir šviesiomis erdvėmis. Viduje rasite tris erdvias miegamąsias ir tris vonios kambarius, svetainę su valgomuoju ir atvira virtuve, taip pat tiesioginį išėjimą į sodą ir privatų baseiną. Stogo solariumas yra ideali vieta atsipalaiduoti, degintis saulėje ar mėgautis atviru vaizdu, todėl tai puiki vieta poilsiui lauke ištisus metus.

Aukštos kokybės specifikacijos ir komfortas
Nekilnojamasis turtas pastatytas pagal aukštus standartus ir turi sustiprintas įėjimo duris, motorizuotas žaliuzes miegamuosiuose, privatų baseiną ir pagrindinę namų automatizavimo sistemą elektroniniam valdymui. Įrengta kanalų oro kondicionavimo sistema, užtikrinanti komfortą visais metų laikais. Privatus automobilių stovėjimo vieta sklype suteikia patogumo ir saugumo.

Torre de la Horadada ir apylinkės
Torre de la Horadada siūlo žavingą pakrantės aplinką su ilga pajūrio promenada, prieplaukomis ir daugybe restoranų, barų ir vietinių parduotuvių. Netoliese esančios Torre de la Horadada ir Mil Palmeras paplūdimiai yra vieni iš geriausių šioje vietovėje, idealiai tinkami maudytis, užsiimti vandens sportu, snorkelingu ir nardymu. Ši vietovė yra gerai susisiekimo atžvilgiu ir apsupta golfo aikštynų, prekybos centrų ir laisvalaikio pramogų.

Atstumai iki pagrindinių lankytinų vietų
Paplūdimys: 0,3 km
Plaza Nueva prekybos zona: 0,2 km
Lo Romero Golf: 7 km
Torre de la Horadada prieplauka: 1,5 km
Murcia Corvera oro uostas: 45 km
Alicante oro uostas: 50 km

Jūsų nauji namai prie Viduržemio jūros laukia
Ši raktų perdavimo būklės vila Torre de la Horadada yra unikali galimybė įsigyti modernius namus vos už kelių žingsnių nuo paplūdimio. Susisiekite su mumis šiandien, kad susitartumėte dėl apžiūros ir užsitikrintumėte šią išskirtinę naujos statybos vilą Costa Blanca.

Vieta

Ekonomija

Ši čia pateikta informacija yra klaidų ir nėra jokios sutarties dalis. Pasiūlymą galima pakeisti arba atšaukti be išankstinio įspėjimo. Kainos neįtraukia pirkimo išlaidų.

Apskaičiuoti hipoteką

Keisti valiutą

  • Svarai: 513.420 GBP
  • Rusijos rublis: 513.420 RUB
  • Šveicarų frankas: 543.706 CHF
  • Kinijos juanis: 4.740.449 CNY
  • Doleris: 694.843 USD
  • Švedijos krona: 6.362.967 SEK
  • Norvegijos krona: 6.489.013 NOK

Daugiau informacijos

Responsable del tratamiento: Naranja Spain, Finalidad del tratamiento: Gestión y control de los servicios ofrecidos a través de la página Web de Servicios inmobiliarios, Envío de información a traves de newsletter y otros, Legitimación: Por consentimiento, Destinatarios: No se cederan los datos, salvo para elaborar contabilidad, Derechos de las personas interesadas: Acceder, rectificar y suprimir los datos, solicitar la portabilidad de los mismos, oponerse altratamiento y solicitar la limitación de éste, Procedencia de los datos: El Propio interesado, Información Adicional: Puede consultarse la información adicional y detallada sobre protección de datos Aquí.

© 2026 Naranja Spain · Teisėtas