
Modernios, naujai pastatytos vilos La Herrada Los Montesinos su privačiu baseinu
Išskirtinis gyvenamųjų namų projektas ramioje vietoje
Įsikūręs prestižiniame La Herrada gyvenamųjų namų rajone Los Montesinos, šis išskirtinis 16 modernių vilų kompleksas siūlo privatumą, komfortą ir puikią gyvenimo kokybę. La Herrada yra žinomas dėl savo ramios gyvenamosios aplinkos, artumo prie kasdienio gyvenimo patogumų ir privilegijuotos vietos tarp žinomų Torrevieja ir La Mata druskos lygumų. Tai ideali vieta tiems, kurie ieško atsipalaidavusio ir sveiko Viduržemio jūros regiono gyvenimo būdo pietinėje Costa Blanca dalyje.
Šiuolaikinis dizainas su optimizuota vidaus erdve
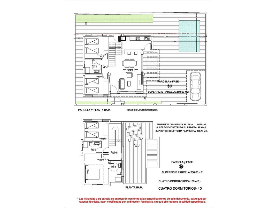
Kiekviena vila turi 130 m² gerai išdėstytos gyvenamosios erdvės dvejose aukštuose, suprojektuotos taip, kad maksimaliai išnaudotų natūralią šviesą ir funkcionalumą. Pastatytos ant 250 m² sklypų, šios nuosavybės siūlo erdvias lauko zonas, puikiai tinkamas degintis, pramogauti ar atsipalaiduoti prie privačiojo baseino.
Patogus išplanavimas per du aukštus
Pirmame aukšte yra atvira svetainė su visiškai integruota virtuve ir tiesiogine išeiga į sodą ir baseino zoną. Šiame aukšte taip pat yra du miegamieji, pilnai įrengta vonios kambarys ir praktiška skalbykla.
Antrame aukšte yra du erdvūs miegamieji, kiekvienas su savo vonios kambariu, iš kurių vienas yra privačias. Abu miegamieji turi išėjimą į 28 m² atvirą privačią terasą. Tiems, kurie nori dar daugiau lauko erdvės, už papildomą kainą galima įsigyti stogo solariumą.
Aukštos kokybės apdaila ir modernios funkcijos
Vilos yra įrengtos kokybiška apdaila, pavyzdžiui, vonios kambario baldais, veidrodžiais, dušo kabinomis ir grindų šildymu visuose vonios kambariuose. Yra paruošta vieta kanalinei oro kondicionavimo sistemai, motorizuotiems įvažiavimo vartams transporto priemonėms, privačiai automobilių stovėjimo aikštelei sklype ir uždarai gyvenamajai zonai, į kurią patenkama privačiu vidiniu keliu.
Puiki vieta netoli pagrindinių patogumų ir pramogų
Guardamar ir Torrevieja paplūdimiai už 9 km
La Marquesa Golf, La Finca Golf ir Vistabella Golf už mažiau nei 5 km
Alicante oro uostas už 29 km
Gamtos parkai, druskos lygumos, dviračių takai ir pėsčiųjų takai netoliese
Gyvenkite patogiai Costa Blanca centre
Šios naujos statybos vilos Los Montesinos mieste siūlo puikų modernių patogumų, gamtos ir puikios prieigos derinį. Nesvarbu, ar ieškote nuolatinės gyvenamosios vietos, ar atostogų namų, šis projektas siūlo viską, ko reikia, kad galėtumėte mėgautis ramiu ir patogiu Viduržemio jūros regiono gyvenimo būdu. Susisiekite su mumis šiandien, kad susitartumėte dėl apžiūros ir užsitikrintumėte savo naujus namus La Herrada.
Ši čia pateikta informacija yra klaidų ir nėra jokios sutarties dalis. Pasiūlymą galima pakeisti arba atšaukti be išankstinio įspėjimo. Kainos neįtraukia pirkimo išlaidų.