Modernūs naujos statybos apartamentai San Miguel de Salinas centre

  • Ref.: NB-93961
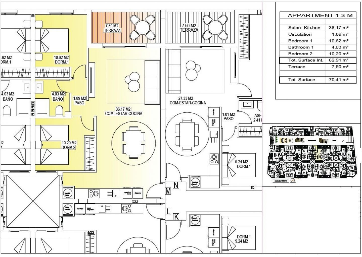
  • 70m2
  • 2
  • 1

Charakteristika

Kambarių skaičius : 2
Vonios kambariai: 1
Pastatyta: 70m2
Virtuvės: 1
Energijos reitingas: A
Statybos metai: 2028-02
Atstumas iki paplūdimio: 10000
Space
Useable Build Space: 62 Msq.
Near Schools
Air Conditioning: Pre-Installed
Elevator/Lift
Communal Pool
Near Childrens Parks
Near Bus Route
Double Bedrooms: 2
Location: Urbanisation
Beach: 10000 Meters
Terrace: 7 Msq.
Energijos reitingas
Energijos reitingas:
A

Aprašymas

Modernūs naujos statybos apartamentai San Miguel de Salinas centre

Šiuolaikinis gyvenimas sveikoje Viduržemio jūros aplinkoje
Įsikūręs žaviuose San Miguel de Salinas miestelyje, vos 10 km nuo Viduržemio jūros, šis naujas gyvenamųjų namų kompleksas siūlo puikų modernių patogumų ir gamtos aplinkos balansą. Ši vietovė gerai žinoma dėl netoliese esančių druskos ežerų ir išskirtinio mikroklimato, kuris laikomas vienu iš sveikiausių Europoje. Šis ramus, bet gyvybingas miestelis leidžia gyventojams mėgautis autentišku Viduržemio jūros regiono gyvenimo būdu, tuo pačiu esant pėsčiomis pasiekiamoje vietoje nuo parduotuvių, restoranų, prekybos centrų ir visų būtiniausių paslaugų.

San Miguel de Salinas yra šiek tiek į vidų nuo Costa Blanca South pakrantės, todėl siūlo atvirą vaizdą, švarų orą ir lengvą prieigą prie paplūdimių, golfo aikštynų ir prekybos centrų.

Stilingi apartamentai, suprojektuoti komfortui ir efektyvumui
Projektą sudaro du modernūs pastatai, kuriuos skiria sutvarkytas bendras sodas. Iš viso yra 56 šiuolaikiški butai su 1, 2 arba 3 miegamaisiais, kiekvienas su privačia terasa. Kiekvienas namas buvo suprojektuotas atsižvelgiant į komfortą, estetiką ir energijos efektyvumą, naudojant aukštos kokybės medžiagas ir modernias izoliacijos sistemas.

Kiekviename bute yra:
Saugios įėjimo durys
Vonios kambariai su praustuvėmis
Iš anksto įrengta kanalų oro kondicionavimo sistema
Energijos sertifikato reitingas A

Butų išplanavimas ir orientacija užtikrina natūralią šviesą visą dieną, sukuriant šviesią ir jaukią interjero atmosferą, idealią tiek nuolatiniam gyvenimui, tiek atostogoms.

Išskirtinės bendrosios erdvės poilsiui ir socialiniam gyvenimui
Pirmame aukšte esanti bendroji erdvė suprojektuota kaip socialinis projekto centras, apsuptas kraštovaizdžio sodų, poilsio zonų, dviračių stovėjimo aikštelių ir vaikų žaidimų aikštelės. Tai ideali susitikimų vieta visų amžiaus grupių gyventojams.

Stoge laukia įspūdinga 350 m2 poilsio zona. Šioje erdvėje yra 70 m2 baseinas su atskira vaikų plaukimo zona, pergolomis, saulės gultais ir pavėsinėmis, leidžiančiomis gyventojams atsipalaiduoti ir mėgautis panoraminiais vaizdais. Stogas yra lengvai pasiekiamas vienu iš trijų liftų, jame yra sanitarinės patalpos, užtikrinančios papildomą komfortą.

Puiki vieta netoli svarbiausių lankytinų vietų
Viduržemio jūros paplūdimiai 10 km
„Zenia Boulevard“ prekybos centras 9 km
„Villamartin Golf“ 6 km
„Las Colinas Golf“ 8 km
Torrevieja Marina 12 km
Alicante oro uostas 60 km
Murcia Corvera oro uostas 55 km

Protinga investicija į pietinę Kosta Blanką
Šis gyvenamasis kompleksas derina modernią architektūrą, kokybišką apdailą ir puikią centrinę vietą, todėl tai puikus pasirinkimas gyventi, atostogauti ar investuoti į nuomą.

Susisiekite su mumis šiandien, jei norite gauti daugiau informacijos arba susitarti dėl šių modernių apartamentų San Miguel de Salinas apžiūros.

Vieta

Ekonomija

Ši čia pateikta informacija yra klaidų ir nėra jokios sutarties dalis. Pasiūlymą galima pakeisti arba atšaukti be išankstinio įspėjimo. Kainos neįtraukia pirkimo išlaidų.

Apskaičiuoti hipoteką

Keisti valiutą

  • Svarai: 143.827 GBP
  • Rusijos rublis: 143.827 RUB
  • Šveicarų frankas: 152.312 CHF
  • Kinijos juanis: 1.327.970 CNY
  • Doleris: 194.651 USD
  • Švedijos krona: 1.782.495 SEK
  • Norvegijos krona: 1.817.805 NOK

Daugiau informacijos

Responsable del tratamiento: Naranja Spain, Finalidad del tratamiento: Gestión y control de los servicios ofrecidos a través de la página Web de Servicios inmobiliarios, Envío de información a traves de newsletter y otros, Legitimación: Por consentimiento, Destinatarios: No se cederan los datos, salvo para elaborar contabilidad, Derechos de las personas interesadas: Acceder, rectificar y suprimir los datos, solicitar la portabilidad de los mismos, oponerse altratamiento y solicitar la limitación de éste, Procedencia de los datos: El Propio interesado, Información Adicional: Puede consultarse la información adicional y detallada sobre protección de datos Aquí.

© 2026 Naranja Spain · Teisėtas