Prabangios naujos statybos vilos Finestrat mieste netoli Benidormo

  • Ref.: NB-53977
  • 222m2
  • 500m2
  • 3
  • 3

Charakteristika

Kambarių skaičius : 3
Vonios kambariai: 3
Pastatyta: 222m2
Sklypas: 500m2
Energijos reitingas: A
Atstumas iki paplūdimio: 3500
Gated
Solarium: Yes
Number of Parking Spaces: 1
Near Schools
Near Commercial Center
Double Bedrooms: 3
Near Golf / Golf Resort Property
Near Bus Route
Location: Coastal, Urbanisation
Under-Build / Basement
Useable Build Space: 120 Msq.
Patio
Beach: 3500 Meters
Terrace: 86 Msq.
Parking - Space
Laundry Room
Storage / Trastero
Toilet: 1
Energijos reitingas
Energijos reitingas:
A

Aprašymas

Prabangios naujos statybos vilos Finestrat mieste netoli Benidormo

Išskirtinė ekologiškų nepriklausomų vilų kolekcija
Šis prestižinis projektas apima 36 nepriklausomas vilas populiariame Bahia Golf urbanistiniame komplekse Finestrat mieste, vos 3,5 km nuo Viduržemio jūros pakrantės. Sukurtos siekiant suderinti prabangą, komfortą ir ekologiškumą, šios modernios vilos siūlo išskirtinį gyvenimo būdą Costa Blanca regione, apsuptas gamtos, tačiau netoli visų paslaugų.

Kiekvienoje viloje yra 3 arba 4 erdvūs miegamieji, privačiai sutvarkyti sodai ir privatus begalinis baseinas. Kai kurios vilos turi nuostabų vaizdą į jūrą, o visos vilos yra pastatytos ant didelių sklypų, kurių plotas viršija 500 m2, o pastatų plotas prasideda nuo 222 m2.

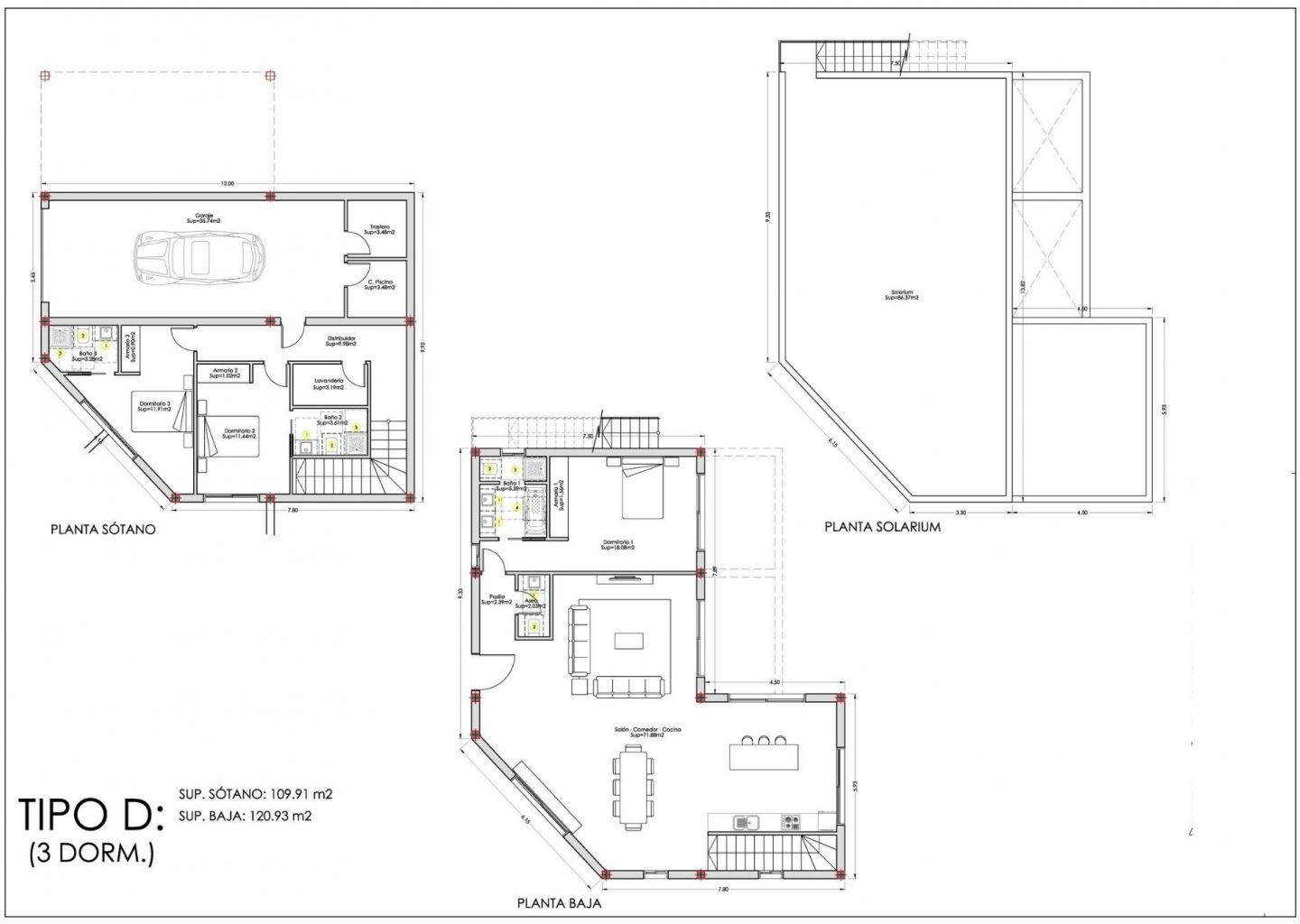
Lankstus išplanavimas su rūsiu ir stogo terasa
Pirkėjai gali rinktis iš keturių skirtingų išplanavimų, kurie visi yra kruopščiai suprojektuoti, kad maksimaliai išnaudotų erdvę ir natūralią šviesą. Kiekvienoje viloje yra rūsys su privačia automobilių stovėjimo aikštele, sandėliu, skalbykla ir dviem miegamaisiais su vonios kambariais, sujungtais su anglišku kiemeliu, kuris užtikrina natūralią šviesą ir vėdinimą.

Pirmame aukšte yra vienas arba du papildomi miegamieji su vonios kambariais, svečių tualetas ir atvira virtuvė, sujungta su svetaine ir valgomuoju, su tiesioginiu išėjimu į terasą ir baseiną. Kiekvieną objektą vainikuoja stogo solariumas, iš kurio atsiveria panoraminis vaizdas į kalnus arba jūrą ir yra galimybė įrengti sūkurinę vonią.

Aukštos kokybės apdaila ir BREEAM energijos efektyvumas
Šios vilos pastatytos pagal BREEAM sertifikavimo standartus, užtikrinančius puikų energijos efektyvumą ir aplinkosaugą. Aukščiausios kokybės specifikacijos apima:

Dvigubo stiklo aliuminio langai su šilumine izoliacija ir elektriniais žaliuziais
Visiškai įrengta kanalų oro kondicionavimo sistema
Motorizuoti įvažiavimo vartai
Privatus baseinas ir kraštovaizdžio sodas
Moderni PORCELANOSA virtuvė su buitine technika
Dizainerių suprojektuoti vonios kambariai su baldais, veidrodžiais ir dušo kabinomis
PORCELANOSA porcelianinės plytelės

Puiki vieta netoli paplūdimių, golfo aikštynų ir parduotuvių
Finestratas yra žavus miestelis, įsikūręs tarp kalnų ir jūros, siūlantis ramybę, bet tuo pačiu esantis vos kelios minutės nuo šurmuliuojančio Benidormo. Ši vietovė derina gamtos grožį su puikia infrastruktūra, tarptautinėmis mokyklomis, restoranais ir prekybos centrais.

Atstumai iki svarbiausių lankytinų vietų
Benidormo paplūdimiai 3,5 km
La Marina prekybos centras 1 km
Puig Campana golfo klubas 3 km
Benidormo senamiestis 4 km
Alicante oro uostas 55 km
Prieiga prie A7 greitkelio 2 km

Išgyvenkite Viduržemio jūros svajonę Finestrate
Šios vilos siūlo puikų prabangos, gamtos ir susisiekimo balansą Costa Blanca regione. Susisiekite su mumis šiandien, kad gautumėte daugiau informacijos arba susitartumėte dėl privačios šių išskirtinių naujos statybos namų Finestrate apžiūros.

Vieta

Ekonomija

Ši čia pateikta informacija yra klaidų ir nėra jokios sutarties dalis. Pasiūlymą galima pakeisti arba atšaukti be išankstinio įspėjimo. Kainos neįtraukia pirkimo išlaidų.

Apskaičiuoti hipoteką

Keisti valiutą

  • Svarai: 740.056 GBP
  • Rusijos rublis: 740.056 RUB
  • Šveicarų frankas: 783.712 CHF
  • Kinijos juanis: 6.833.007 CNY
  • Doleris: 1.001.565 USD
  • Švedijos krona: 9.171.747 SEK
  • Norvegijos krona: 9.353.433 NOK

Daugiau informacijos

Responsable del tratamiento: Naranja Spain, Finalidad del tratamiento: Gestión y control de los servicios ofrecidos a través de la página Web de Servicios inmobiliarios, Envío de información a traves de newsletter y otros, Legitimación: Por consentimiento, Destinatarios: No se cederan los datos, salvo para elaborar contabilidad, Derechos de las personas interesadas: Acceder, rectificar y suprimir los datos, solicitar la portabilidad de los mismos, oponerse altratamiento y solicitar la limitación de éste, Procedencia de los datos: El Propio interesado, Información Adicional: Puede consultarse la información adicional y detallada sobre protección de datos Aquí.

© 2026 Naranja Spain · Teisėtas