
Naujos statybos kotedžai su soliariumu ir požemine garažu Bigastro Vega Baja
Išskirtinis projektas, kurį sudaro tik du modernūs namai
Šis naujos statybos projektas apima tik du kotedžus ramioje Bigastro miestelio vietovėje, esančioje Vega Baja regione, pietinėje Costa Blanca pakrantėje. Šie namai, suprojektuoti pagal praktišką išplanavimą keliuose lygiuose, derina erdvę, komfortą ir energijos efektyvumą gerai susisiekiančioje gyvenamojoje vietovėje.
Bigastro miestas žinomas dėl ramios atmosferos, tradicinio ispaniško charakterio ir puikios prieigos prie netoliese esančių miestų, paplūdimių ir paslaugų. Jis siūlo atsipalaidavusį gyvenimo būdą, tuo pačiu esant arti visko, ko reikia kasdieniam gyvenimui, todėl yra idealus tiek nuolatiniam gyvenimui, tiek atostogoms.
Erdvus išplanavimas keturiuose lygiuose
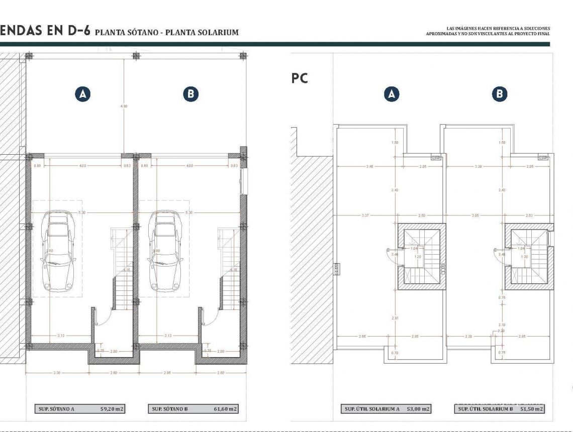
Kiekvienas namas yra išdėstytas rūsyje, pirmame aukšte, antrame aukšte ir ant stogo esančiame solariume, suteikiant erdvų vidaus ir išorės gyvenamąjį plotą.
59 m2 rūsys yra suprojektuotas kaip privatus garažas su motorizuotomis vartomis, siūlantis saugią automobilių stovėjimo vietą ir papildomą sandėliavimo erdvę.
Pirmame aukšte rasite šviesią atvirą svetainę su virtuve, svečių tualetą ir dvi terasas, vieną priekyje ir vieną gale, leidžiančias visą dieną mėgautis natūralia šviesa ir vėdinimu.
Antrame aukšte yra 3 miegamieji ir 2 vonios kambariai, vienas iš jų su privačiu vonios kambariu, taip pat papildoma terasa. Viršutiniame aukšte yra apie 40 m2 ploto privatus stogo solariumas, kuris yra puiki vieta atsipalaiduoti, degintis saulėje ar sukurti poilsio zoną lauke.
Kokybiškos savybės ir energiją taupančios sistemos
Šie namai pastatyti iš modernių medžiagų ir apgalvotų detalių, siekiant užtikrinti komfortą ir efektyvumą, įskaitant:
Sustiprintos saugumo durys
Aeroterminė sistema karštam vandeniui
Fotovoltaikiniai saulės kolektoriai
Elektrinės žaliuzės svetainėje ir miegamuosiuose
Iš anksto įrengta kanalų oro kondicionavimo sistema
Motorizuotos garažo durys
Gyventojai taip pat turi prieigą prie bendro baseino urbanizacijoje, kuris suteikia papildomą vertę poilsiui ir atsipalaidavimui.
Gera susisiekimo vieta Netoli paplūdimių ir paslaugų
Bigastro miesto centras 0,5 km
Orihuela miestas 5 km
Guardamar del Segura paplūdimiai 15 km
Zenia Boulevard prekybos centras 20 km
Vega Baja ligoninė 10 km
Alicante tarptautinis oro uostas 48 km
Keletas golfo aikštynų 15 km spinduliu
Netoliese esantis greitkelis AP 7 užtikrina greitą susisiekimą su Alikante, Mursija ir aplinkinėmis pakrantės miestais.
Puiki galimybė augančiame gyvenamajame rajone
Dėl vietinių parduotuvių, mokyklų, sporto įrenginių, parkų ir restoranų Bigastro tampa vis populiaresnis tarp nacionalinių ir tarptautinių pirkėjų, ieškančių gyvenimo kokybės ir gerų susisiekimo galimybių.
Susisiekite su mumis šiandien, kad gautumėte daugiau informacijos arba susitartumėte dėl apžiūros šių išskirtinių naujos statybos namų Bigastro mieste.
Ši čia pateikta informacija yra klaidų ir nėra jokios sutarties dalis. Pasiūlymą galima pakeisti arba atšaukti be išankstinio įspėjimo. Kainos neįtraukia pirkimo išlaidų.