
Naujos statybos gyvenamieji apartamentai Los Balcones, Torrevieja
Modernūs namai prestižiniame gyvenamajame rajone
Atraskite šį patrauklų naujos statybos gyvenamųjų namų kompleksą, esantį Los Balcones, viename iš populiariausių ir labiausiai įsitvirtinusių rajonų Torrevieja pakraštyje. Įsikūręs ramioje aplinkoje, su puikiu susisiekimu su visomis būtinomis paslaugomis, šis kompleksas yra vos 4 km nuo Costa Blanca smėlio paplūdimių. Los Balcones yra žinomas dėl savo ramios atmosferos, plačių gatvių, žaliųjų zonų ir artumo ligoninėms, prekybos centrams, restoranams ir prekybos centrams, todėl jis yra idealus vieta gyventi ištisus metus ar praleisti atostogas.
Šiuolaikiniai butai su privačiomis lauko erdvėmis
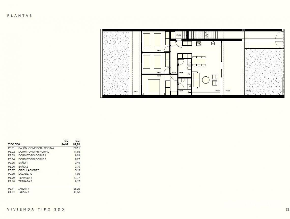
Kompleksą sudaro 52 modernūs butai, pastatyti ant 6700 m2 ploto. Kiekvienam butui priklauso privati automobilių stovėjimo vieta ir sandėliukas požeminiame aukšte. Butuose yra 2 arba 3 miegamieji ir 2 vonios kambariai, vienas iš jų yra privačiame kambaryje.
Pirkėjai gali rinktis iš pirmame aukšte esančių butų su privačiu sodu arba viršutiniame aukšte esančių butų su erdvia terasa ir privačiu soliariumu. Šie planai sukurti taip, kad maksimaliai išnaudotų natūralią šviesą ir suteiktų patogias gyvenamąsias erdves viduje ir lauke, kad būtų galima mėgautis Viduržemio jūros klimatu ištisus metus.
Bendrosios erdvės, skirtos poilsiui
Projektas suskirstytas į keturis blokus, supančius didelę centrinę bendrąją erdvę. Šioje žalios plėtros širdyje yra baseinas su specialia vaikų zona ir gražiai sutvarkyti sodai. Šios bendrosios erdvės yra puikios poilsiui, bendravimui ir laikui su šeima saugioje ir draugiškoje aplinkoje.
Aukštos kokybės savybės ir energiją taupantis dizainas
Kiekvienas butas pastatytas pagal modernius standartus ir turi iš anksto įrengtą kanalų oro kondicionavimo sistemą, aeroterminę karšto vandens sistemą, padedančią taupyti energiją, išorinį apšvietimą ir dvigubo stiklo išorinius langus. Virtuvės yra visiškai įrengtos, siūlančios funkcionalią ir stilingą erdvę kasdieniam gyvenimui.
Šios savybės užtikrina aukštą komforto lygį, mažą priežiūrą ir sumažintą energijos suvartojimą, todėl namai yra praktiški ir tvarūs.
Puiki vieta netoli paplūdimių ir golfo
Los Balcones siūlo strateginę vietą netoli daugelio lankytinų vietų. Torrevieja paplūdimiai yra maždaug 4 km atstumu. Keletas žinomų golfo aikštynų, tokių kaip Villamartin Golf, Las Ramblas Golf ir Campoamor Golf, yra 10–15 km atstumu. Torrevieja universitetinė ligoninė yra mažiau nei 2 km atstumu, todėl gyvenimas čia yra patogus ir ramus.
Torrevieja miesto centras yra apie 5 km atstumu, sujungtas autobusu su Los Balcones, kur rasite daugybę parduotuvių, restoranų, kultūros vietų ir gyvybingą jachtų prieplauką. Alikantės tarptautinis oro uostas yra apie 42 km atstumu, užtikrinantis lengvus tarptautinius susisiekimus. Torrevieja uostas yra maždaug 6 km atstumu.
Ideali vieta gyventi ar investuoti
Dėl modernaus dizaino, puikių bendrų erdvių ir puikios vietos netoli paplūdimių, golfo aikštynų ir paslaugų, šis naujas gyvenamasis kompleksas Los Balcones Torrevieja yra puikus pasirinkimas nuolatiniam gyvenimui, atostogų namams ar investicijoms.
Susisiekite su mumis šiandien, jei norite gauti daugiau informacijos arba susitarti dėl šių naujų butų Los Balcones, Torrevieja apžiūros.
Ši čia pateikta informacija yra klaidų ir nėra jokios sutarties dalis. Pasiūlymą galima pakeisti arba atšaukti be išankstinio įspėjimo. Kainos neįtraukia pirkimo išlaidų.