
Šiuolaikinis Viduržemio jūros gyvenimo būdas Baltosios pakrantės regione
Ši įspūdinga naujai pastatyta, nepriklausoma vila Chavėje sujungia aukštos kokybės apdailą, elegantišką dizainą ir optimalų funkcionalumą trijuose erdviuose aukštuose. Įsikūrusi vienoje geidžiamiausių Šiaurės Baltosios pakrantės vietovių, ši nuosavybė siūlo ramią gyvenamąją aplinką, apsuptą žalių kalvų, gamtos parkų ir nuostabių paplūdimių. Chavė garsėja krištolo skaidrumo vandeniu, tradicine virtuve ir Viduržemio jūros gyvenimo būdu, todėl tai puiki vieta tiek gyvenimui, tiek investicijoms.
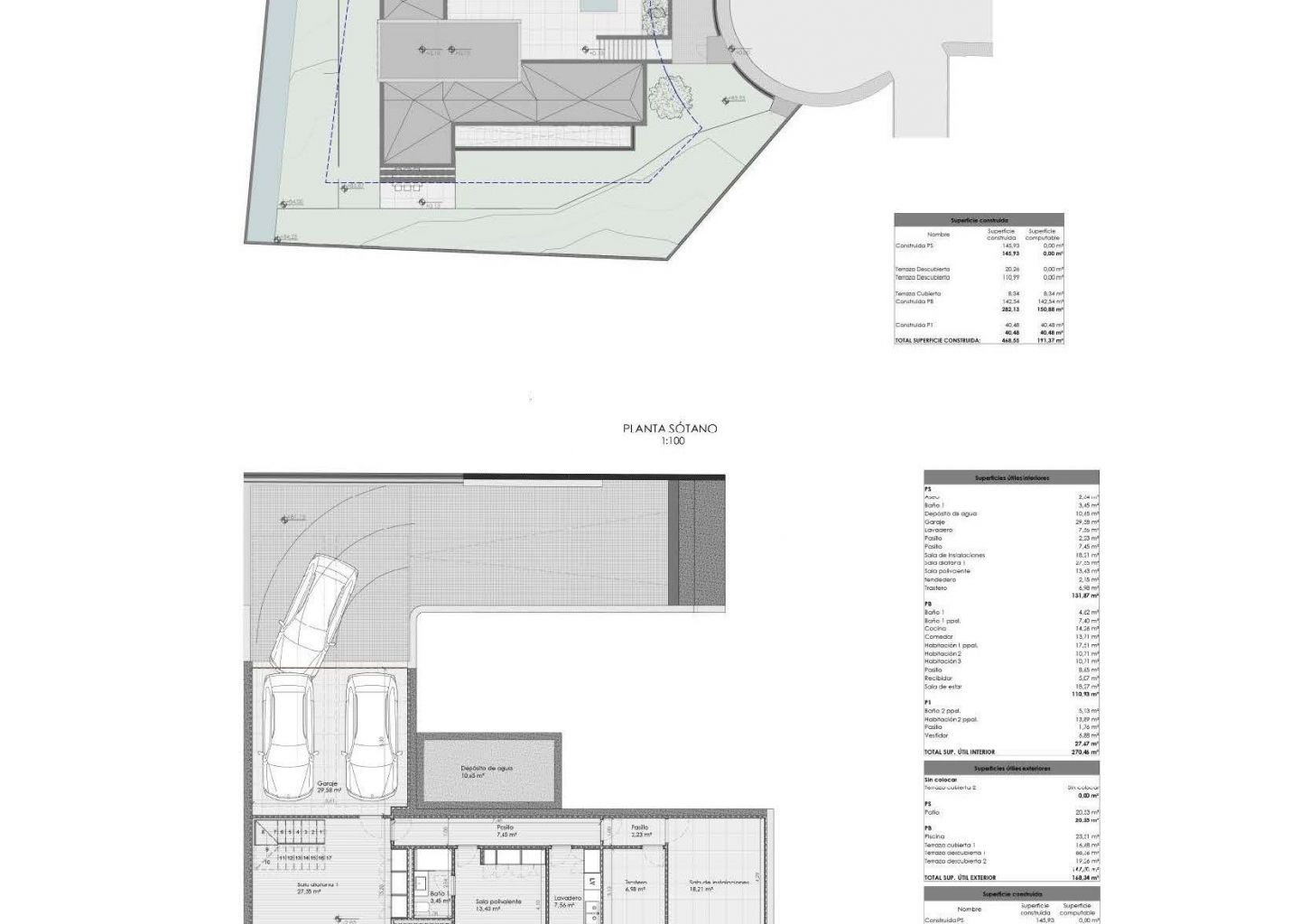
Rūsys kruopščiai suprojektuotas, kad atitiktų šiuolaikinio gyvenimo poreikius. Jame yra atvira dviejų automobilių garažo erdvė, vonios kambarys, svečių tualetas, atvira daugiafunkcė patalpa, universali salė ir kiemelis, suteikiantis natūralios šviesos. Šiame aukšte galima įrengti sporto salę, pramogų zoną, biurą ar svečių apartamentus.
Pirmajame aukšte yra šviesi svetainė-valgomasis, sklandžiai integruota su visiškai įrengta virtuve – tai puiki erdvė šeimos susibūrimams. Prieškambaris, svečių tualetas ir koridoriai suteikia praktiškumo ir patogumo. Šiame aukšte taip pat yra du jaukūs miegamieji, besidalijantys modernų vonios kambarį, ir erdvus pagrindinis miegamasis su vonios kambariu – jauki ir privati zona.
Viršutinis aukštas skirtas antrajam pagrindiniam miegamajam – tai išskirtinė poilsio erdvė su nuosavu vonios kambariu, drabužine ir koridoriumi. Ši privati zona užtikrina ramybę ir komfortą, o pro langus atsiveria vaizdai į vešlias apylinkes.
Išorinės vilos zonos sukurtos taip, kad būtų galima mėgautis gyvenimu lauke visus metus. Pirmajame aukšte yra dvi dengtos ir dvi atviros terasos. Viena iš dengtų terasų ribojasi su baseinu – puiki vieta vasaros poilsiui, o atviroji terasa šalia virtuvės idealiai tinka valgymui lauke ar susitikimams su draugais.
Vila įrengta su grindiniu šildymu ir ortakių oro kondicionavimu, todėl komfortas garantuojamas bet kuriuo metų laiku.
Arenal paplūdimys – 3 km
Chavės uostas ir marina – 7 km
Chavės golfo klubas – 3 km
Alicante oro uostas – 100 km
Valensijos oro uostas – 125 km
Nesvarbu, ar ieškote prabangios gyvenamosios vietos, atostogų namų, ar saugios ilgalaikės investicijos – ši vila siūlo išskirtinį gyvenimo būdą Chavėje. Susisiekite su mumis jau šiandien ir suplanuokite apsilankymą, kad atrastumėte savo būsimus namus Baltosios pakrantės regione.
Ši čia pateikta informacija yra klaidų ir nėra jokios sutarties dalis. Pasiūlymą galima pakeisti arba atšaukti be išankstinio įspėjimo. Kainos neįtraukia pirkimo išlaidų.