
Išskirtinė vieta Benijófare
Šie išskirtiniai naujos statybos dvibučiai namai įsikūrę žavingame Benijófar miestelyje – vienoje paklausiausių vietų visoje Costa Blanca pakrantėje. Benijófar garsėja savo tradicinio ispaniško žavesio ir šiuolaikinio gyvenimo būdo deriniu. Čia rasite viską, ko reikia patogiam gyvenimui – prekybos centrus, vaistines, bankus, restoranus ir vietines parduotuves. Urbanizacija yra strategiškai įsikūrusi vos už 10 km nuo auksinių Guardamar del Segura paplūdimių ir 30 km nuo Alikantės oro uosto, todėl tai puiki vieta tiek nuolatiniam gyvenimui, tiek atostogoms.
Erdvus ir modernus dizainas
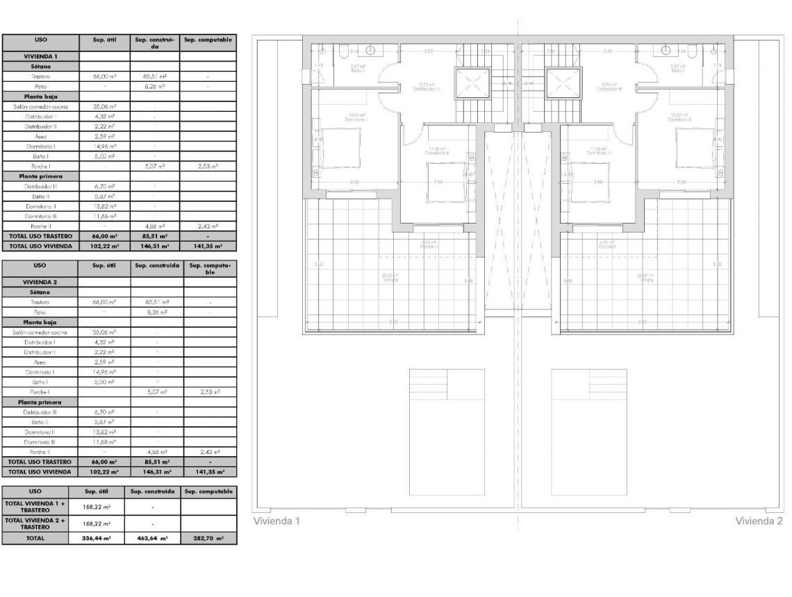
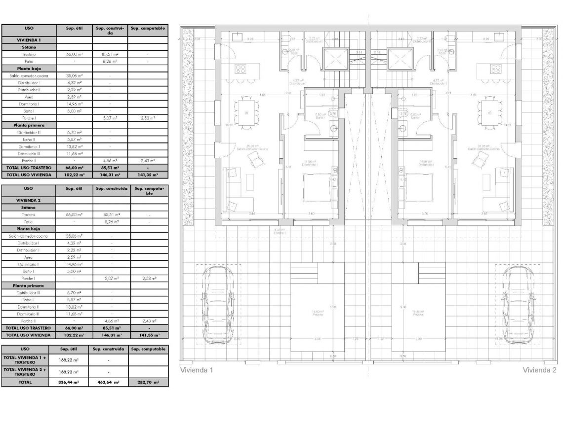
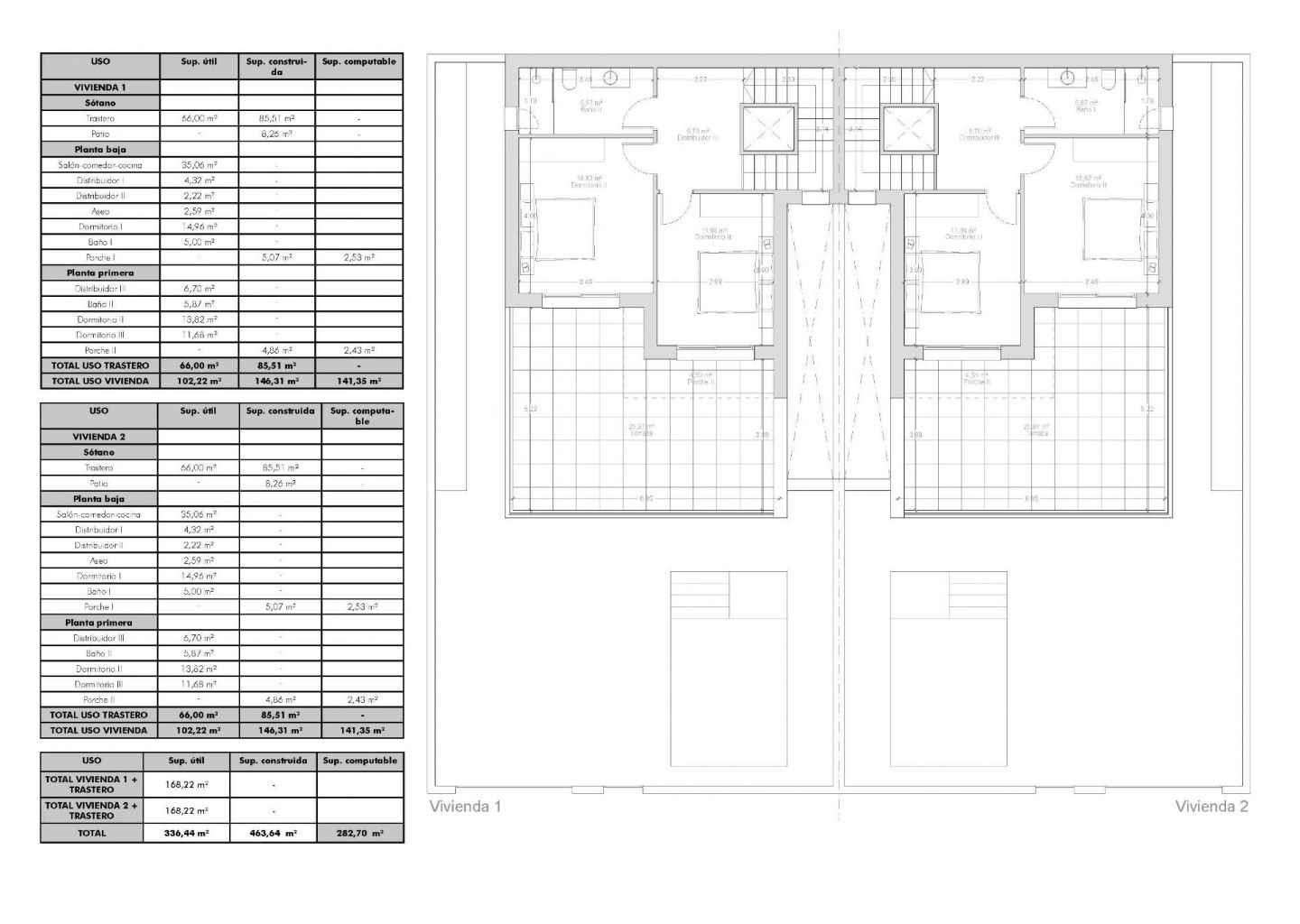
Kiekvienas namas suprojektuotas šiuolaikiniu stiliumi, siekiant maksimaliai išnaudoti erdvę ir natūralią šviesą. Išplanavimas apima tris miegamuosius (vienas pirmame aukšte ir du antrame) bei tris vonios kambarius (vienas iš jų rūsyje), todėl šie namai puikiai tinka šeimoms ir svečiams. Erdvi svetainė ir valgomasis sklandžiai jungiasi su pilnai įrengta virtuve, sukurdami šiltą ir funkcionalią atmosferą. Dideli langai užtikrina natūralią šviesą visoje erdvėje.
Aukščiausios kokybės įranga ir papildomi privalumai
Šie namai išsiskiria aukštos kokybės apdaila ir kruopščiai apgalvotomis detalėmis:
66 m² rūsys su vonios kambariu, skalbykla ir pagalbine patalpa.
Privatus baseinas, stogo terasa su kepsnine ir kriaukle.
Dekoratyvinis židinys svetainėje.
Privati automobilių stovėjimo vieta sklype.
Liftas iš rūsio iki viršutinio aukšto.
3 fotovoltiniai saulės moduliai ir LED apšvietimas visame name.
Paruošta oro kondicionavimo sistema.
Pilnai įrengti vonios kambariai su baldais ir dušo pertvaromis.
200 m² sklypai.
Gyvenimo būdas ir aplinka
Benijófar siūlo tobulą tradicinio ispaniško kaimelio ir modernaus gyvenimo patogumų derinį. Gamta besidomintys gyventojai mėgausis netoliese esančiu gamtos parku, puikiai tinkančiu pasivaikščiojimams ar važiavimui dviračiu. Golfo mėgėjams La Marquesa Golf aikštynas yra vos už 5 km, o dar keli aukštos klasės aikštynai – 15 km spinduliu. Šeimos gali aplankyti vandens parkus Rojales (4 km) ir Torrevieja (12 km), arba pasimėgauti gyvybinga Torreviejos miesto atmosfera.
Puikus susisiekimas
Vilos turi patogų priėjimą prie N-332 ir AP-7 greitkelių, todėl greitai pasieksite Alikantę, Elčę, Orihuela Costa ir Mursiją. Ši vieta siūlo tobulą ramybės, paslaugų ir puikaus susisiekimo balansą.
Jūsų svajonių namai Costa Blancoje
Mėgaukitės prabanga, komfortu ir Viduržemio jūros gyvenimo būdu šiuose įspūdinguose naujos statybos namuose Benijófare. Susisiekite su mumis jau šiandien – gaukite daugiau informacijos ir suplanuokite apsilankymą savo būsimuose namuose.
Ši čia pateikta informacija yra klaidų ir nėra jokios sutarties dalis. Pasiūlymą galima pakeisti arba atšaukti be išankstinio įspėjimo. Kainos neįtraukia pirkimo išlaidų.