
Planuojama atidavimo data: 2026-12-01
Atraskite šį išskirtinį boutique tipo naujos statybos projektą pačioje Torreviejos širdyje. Vos 600 metrų iki Playa de Los Locos ir 650 metrų iki garsiosios Playa del Cura, su gyvybinga promenada – šie apartamentai siūlo tobulą derinį tarp pajūrio gyvenimo ir visų miesto patogumų.
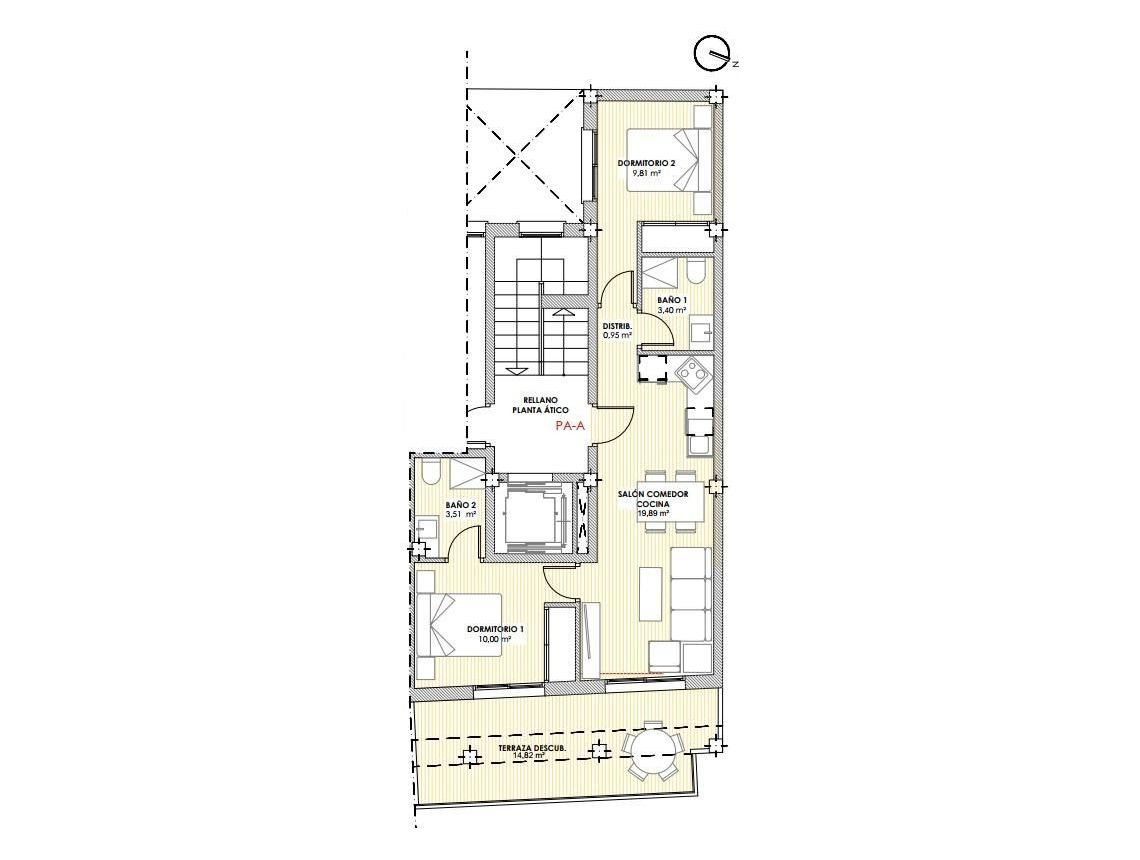
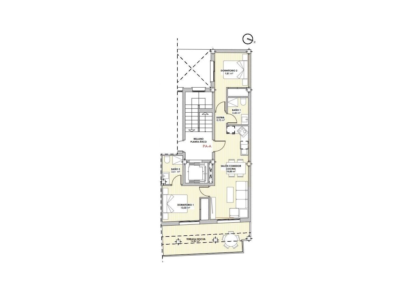
Galite rinktis tarp:
elegantiškų 1 miegamojo / 1 vonios kambario apartamentų arba
erdvesnių 2 miegamųjų / 2 vonios kambarių apartamentų.
Kiekvienas būstas suplanuotas taip, kad būtų kuo daugiau natūralios šviesos, o erdvės būtų funkcionalios ir komfortiškos. Aukštos kokybės apdaila užtikrina patvarumą ir stilių – tai puikus pasirinkimas tiek nuolatiniam gyvenimui, tiek poilsinėms atostogoms.
Gyventojai gali atsipalaiduoti ant bendros stogo terasos su soliariumu arba atsigaivinti bendrame baseine – puiki vieta pailsėti po dienos prie jūros.
Už papildomą kainą galima įsigyti sandėliuką ant stogo – dar daugiau saugumo ir patogumo.
Ši čia pateikta informacija yra klaidų ir nėra jokios sutarties dalis. Pasiūlymą galima pakeisti arba atšaukti be išankstinio įspėjimo. Kainos neįtraukia pirkimo išlaidų.