
Naujai pastatytos vilos su keliais modeliais, iš kurių galima rinktis: su 2, 3 arba 4 miegamaisiais, vieno arba dviejų aukštų, pastatytos iš plokščių arba su karkasu: tiksli kaina bus apskaičiuota priklausomai nuo modelio ir pasirinkto sklypo.
Visos vilos pastatytos kaimiškuose sklypuose, kurių plotas didesnis nei 10 000 m2, iš kurių apie 2 500 m2 bus aptverta.
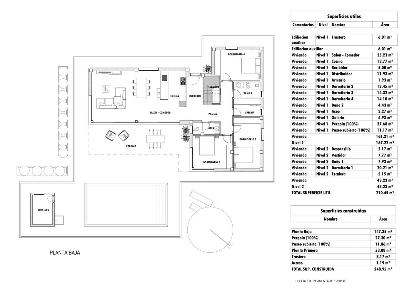
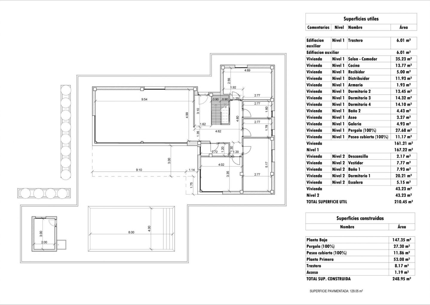
Vilos turi atviro plano virtuvę su svetaine, įmontuotas spintas, privatų baseiną, verandą, sandėliavimo patalpą ir lauko automobilių stovėjimo aikštelę.
Yra keletas sklypų, iš kurių galima rinktis. Kaina nurodyta pagal sklypą, kurio kaina yra 77 500 GBP (jei pasirinksite kitą sklypą, skirtumas bus sumokėtas arba įskaitytas pagal sklypo kainą).
Savarankiškos statybos projektas, pristatymas maždaug per 12 mėnesių nuo licencijos išdavimo.
Jei ieškote ramios aplinkos, netoli tipiškų ispaniškų kaimų, atokiau nuo turistų minios, apsuptos kalnų, su labai dideliu sklypu ir maždaug 30 minučių kelio nuo jūros, tai kaip tik Jums.
Aspe – tai tipiškas ispaniškas kaimas su visais kasdieniam gyvenimui reikalingais patogumais, apsuptas kalnų ir su keliomis netoliese esančiomis gamtos zonomis, kuriose galite leistis į žygius pėsčiomis ar važinėtis kalnų dviračiais.
Įsikūręs 25 km nuo paplūdimio, 9 km nuo Elčės ir apie 20 km nuo Alikantės oro uosto.
Ši čia pateikta informacija yra klaidų ir nėra jokios sutarties dalis. Pasiūlymą galima pakeisti arba atšaukti be išankstinio įspėjimo. Kainos neįtraukia pirkimo išlaidų.