
Viduržemio jūros stiliaus būstai Vega Baja regione
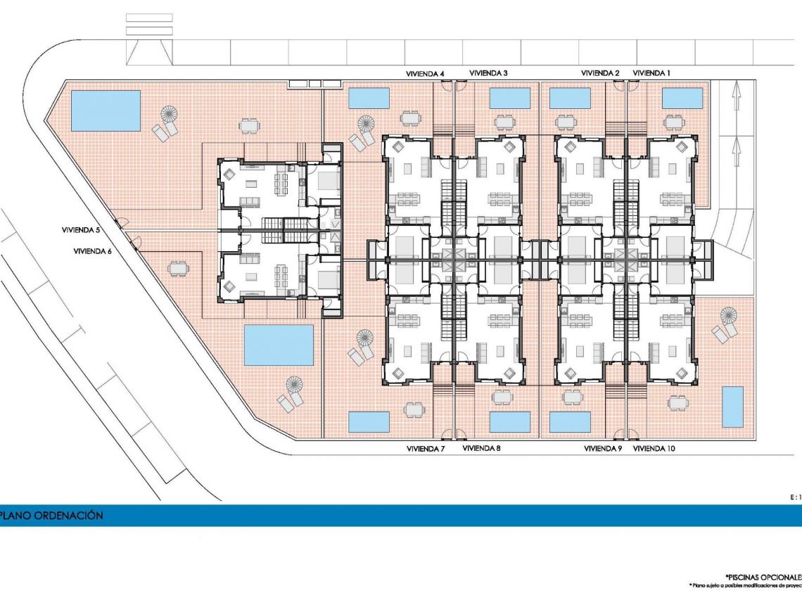
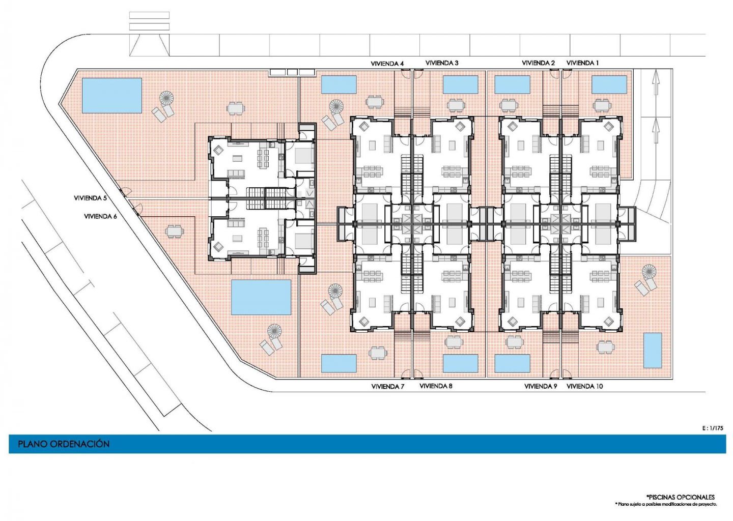
Šis naujas gyvenamasis kompleksas Bigastro miestelyje, žaviame Vega Baja regione, siūlo 8 kotedžus ir 2 subvilas, sukurtas elegantišku Viduržemio jūros stiliumi. Ramioje ir gerai susisiekiančioje vietovėje įsikūrę būstai puikiai tinka tiems, kurie ieško komforto, privatumo ir patogios prieigos prie visų paslaugų.
Kiekviena gyvenamoji erdvė suplanuota taip, kad suteiktų maksimalų patogumą. Būstuose yra 4 miegamieji ir 3 vonios kambariai, išdėstyti per 2 aukštus.
Pirmas aukštas:
Vienas miegamasis
Pilnai įrengtas vonios kambarys
Atviro plano virtuvė sujungta su svetaine
Skalbykla
Išėjimas į privatų kiemą
Antras aukštas:
3 miegamieji, iš jų pagrindinis – su vonios kambariu (ensuite)
Privatus 40 m² stogo terasa (soliariumas) – puikiai tinkanti mėgautis Viduržemio jūros klimatu ir atviromis panoramomis.
Privatus sodas su galimybe įrengti baseiną (už papildomą kainą).
Privatus garažas daugiau nei 60 m² ploto rūsyje su tiesioginiu patekimu į namus.
Bigastro – jaukus miestelis pietinėje Alikantės dalyje, žinomas dėl ramių gyvenamųjų rajonų ir puikios susisiekimo infrastruktūros su pagrindiniais miestais ir Costa Blanca paplūdimiais.
Atstumai:
Orihuela – 5 km (apie 5 min. automobiliu)
Guardamar paplūdimiai – 25 km (apie 15 min. automobiliu)
Torrevieja – 30 km (apie 25 min. automobiliu)
Alikantės oro uostas – 55 km (apie 30 min. automobiliu)
Prekybos centras Zenia Boulevard – 30 km (apie 25 min. automobiliu)
Miestelyje rasite viską patogiam gyvenimui: prekybos centrus, mokyklas, sporto centrus ir plačią gastronominę pasiūlą. Tai puikus pasirinkimas tiek nuolatinei gyvenamajai vietai, tiek antrai poilsio būstui.
Jeigu ieškote modernaus, erdvaus būsto ramioje, bet strategiškai patogioje vietoje – šios vilos ir kotedžai Bigastro mieste yra idealus pasirinkimas.
Susisiekite su mumis dėl detalesnės informacijos arba dėl apsilankymo organizavimo.
Ši čia pateikta informacija yra klaidų ir nėra jokios sutarties dalis. Pasiūlymą galima pakeisti arba atšaukti be išankstinio įspėjimo. Kainos neįtraukia pirkimo išlaidų.