
2 naujos gražios vilos Torrevieja.
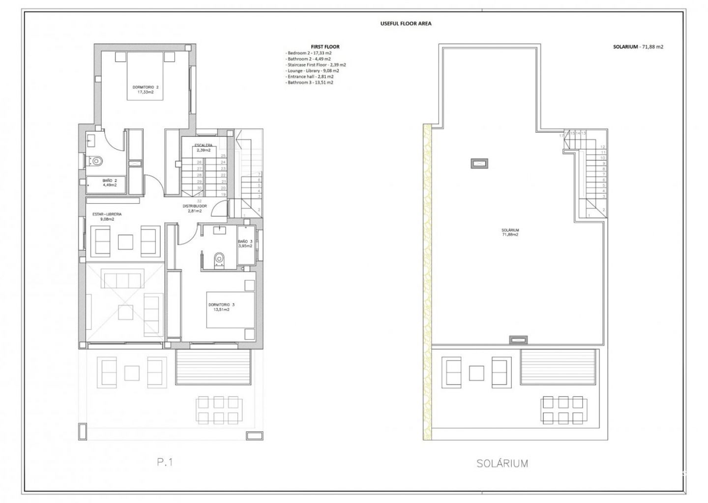
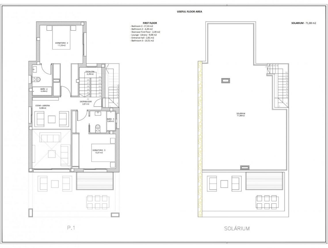
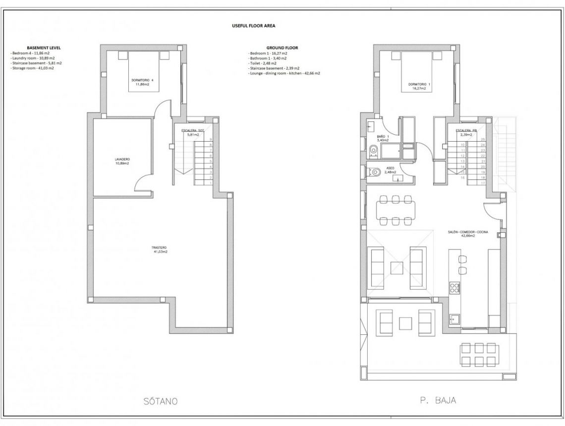
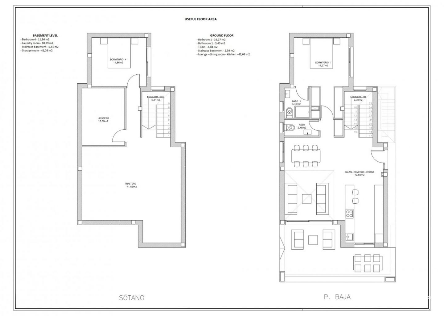
Viloje yra 4 miegamieji, 4 vonios kambariai, atviro plano virtuvė su poilsio zona, įmontuotos spintos, privatus sodas su baseinu ir automobilių stovėjimo aikštele bekelėje, privatus soliariumas ir rūsys.
Vilos yra 15 minučių pėsčiomis nuo garsiosios Playa de La Mata paplūdimio (5 minutės automobiliu).
Torrevieja yra Ispanijos miestas Alikantės provincijoje, Kosta Blankoje.
Jis žinomas dėl tipiško Viduržemio jūros klimato ir pakrantės. Palei smėlio paplūdimius yra promenadų su kurortais.
Nedideliame Jūros ir druskos muziejuje eksponuojamos parodos apie miesto žvejybos ir druskos istoriją.
Interjere esančiame Lagunas de La Mata-Torrevieja gamtos parke yra takai ir dvi sūrios lagūnos, viena rožinė, kita žalia.
Alikantės oro uostas yra už 40 minučių kelio, o Mursijos oro uostas – už maždaug valandos kelio.
Ši čia pateikta informacija yra klaidų ir nėra jokios sutarties dalis. Pasiūlymą galima pakeisti arba atšaukti be išankstinio įspėjimo. Kainos neįtraukia pirkimo išlaidų.