
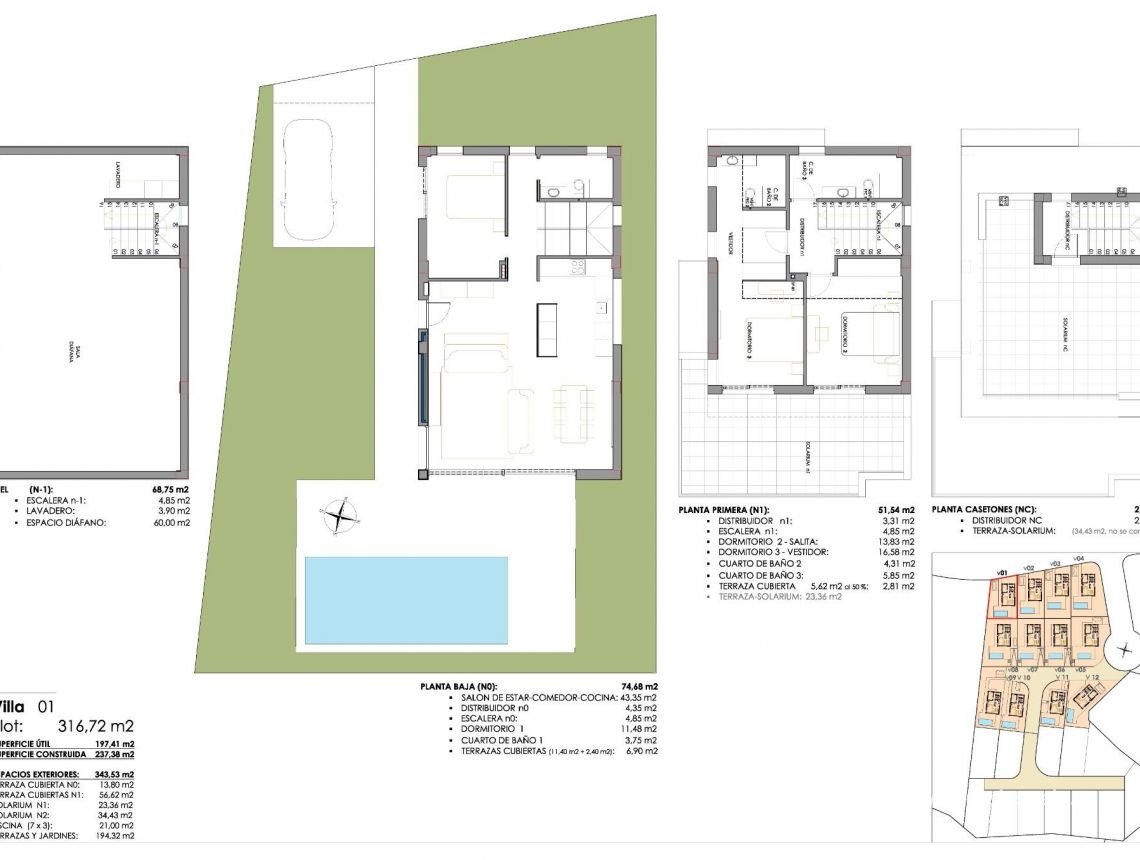
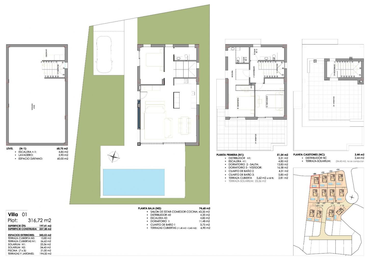
3 miegamieji | 3 vonios kambariai | 237,38 m² bendro ploto | ~400 m² sklypas | privatus baseinas
Pristatome modernią ir erdvią nepriklausomą vilą prestižiniame Kosta Blankos regione – San Miguel de Salinas miestelyje. Šis namas išsiskiria šviesiomis erdvėmis, kokybiška statyba ir idealia vieta tiek gyvenimui, tiek poilsiui.
Pagrindinė informacija:
Bendras plotas: 237,38 m²
Sklypas: apie 400 m²
Privatus baseinas: 8 x 3,5 m
Sklype pasodinta palmė ir alyvmedis
Privati parkavimo vieta su automatiniu vartų mechanizmu
Pietinė namo orientacija
Statybos kokybė ir įranga:
Žemės drebėjimams atspari gelžbetoninė konstrukcija
Pilna garso ir šilumos izoliacija visame name
Fasado apdaila iš akmens ir švelnaus tinko
Langai su terminiu lūžio profiliu, elektrinės žaliuzės
Šarvuotos įėjimo durys, automatizuoti įvažiavimo vartai
Vidus:
Grindys iš porcelianinių plytelių visame name
Vidaus laiptai iš marmuro arba porceliano
Atskira virtuvė su viršutinėmis ir apatinėmis spintelėmis, granito arba Silestone stalviršiu
Įmontuota buitinė technika
Dizaino vonios kambariai su pakabinama santechnika, baldais ir grindiniu šildymu
Numatyta ortakių oro kondicionavimo sistema (įranga įskaičiuota)
Karštas vanduo tiekiamas per aeroterminę sistemą (190 l talpa)
Įmontuotos spintos su LED apšvietimu
Vaizdo domofonas ir šviesolaidinis internetas
LED lauko apšvietimas
Aptverta teritorija, suformuoti pėsčiųjų ir automobilių takai
Papildomai (pasirinktinai):
Rūsys
Stogo terasa su galimybe įrengti sūkurinę vonią arba lauko virtuvę
Vieta:
San Miguel de Salinas yra pietinėje Alikantės provincijos dalyje, Vega Baja del Segura regione, netoli Mursijos sienos. Netoli yra prestižiniai golfo laukai Las Colinas ir Campoamor, o iš teritorijos atsiveria vaizdai į Torreviejos ir La Mata druskos lagūnas. Alikantės oro uostas pasiekiamas per 35 minutes automobiliu.
Ši vila yra puikus pasirinkimas tiems, kurie ieško erdvaus, šiuolaikiško ir energetiškai efektyvaus būsto patogioje bei ramioje vietoje.
Jei norėtumėte daugiau informacijos ar norite apžiūrėti — susisiekite su mumis.
Ši čia pateikta informacija yra klaidų ir nėra jokios sutarties dalis. Pasiūlymą galima pakeisti arba atšaukti be išankstinio įspėjimo. Kainos neįtraukia pirkimo išlaidų.